Logo ALEX INVEST IMMOBILIER SRL
ALEX INVEST IMMOBILIER SRL
+32 488 32 79 79
Chaussée Paul Houtart 232 - 7110 Houdeng-Goegnies
Recherche par référence :

Réf. : 7220660  Maison avec 2 entrées séparées, idéale pour prof. libérale à 7110 La Louvière Houdeng-Aimeries
Située à proximité immédiate de toutes les commodités, cette spacieuse maison offre de nombreuses possibilités d’aménagement et un potentiel exceptionnel.
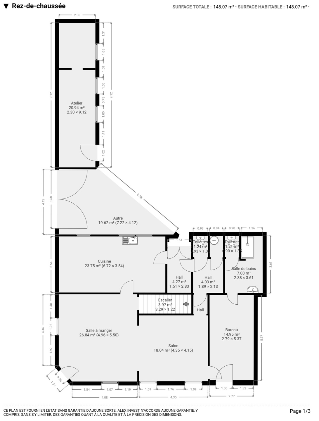
=> Au rez-de-chaussée, vous découvrirez une grande salle à manger de ± 27 m², un salon de ± 18 m² et une vaste cuisine de ± 24 m². Le hall dessert un WC séparé et une petite pièce de rangement. Grande pièce polyvalente pouvant être utilisée comme bureau ou espace professionnel. Une salle de douche avec WC séparé complète ce niveau.
À l’extérieur, le bien dispose d’un emplacement de PARKING pour deux voitures, un ATELIER de ± 21 m² ainsi qu'un JARDIN.
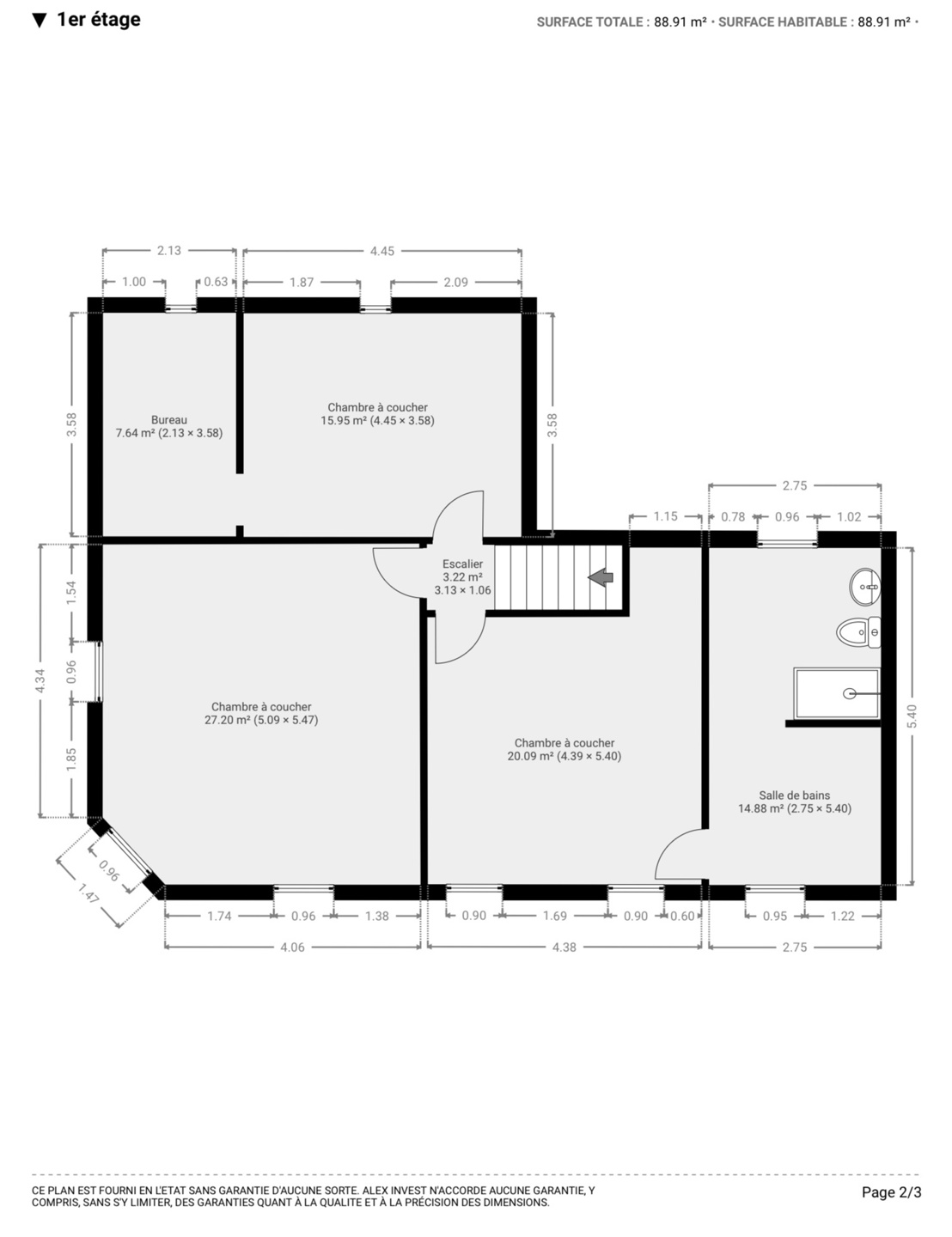
=> Le 1er étage se compose d’un petit hall menant à trois belles chambres de +/- 27, 20 et 16 m², cette dernière bénéficiant en plus d’un espace bureau de ± 8 m².
Une salle de douche avec WC et un espace buanderie complètent cet étage.
La maison possède également deux CAVES offrant un espace de stockage supplémentaire.

Des travaux sont à prévoir, mais cette maison présente un ENORME POTENTIEL pour qui souhaite concilier habitation et activité professionnelle ou créer un logement spacieux et personnalisé.

Faire offre à partir de 190 000 €, sous réserve de l’acceptation des propriétaires. Ne tardez pas à prendre rendez-vous !
Photos
Aspects Financiers et légaux
Offre à partir de : 190 000 €
Revenu cadastral : 696 €
Etat du bien : à rafraîchir
Disponible : à l'acte
Description extérieure
Nombre de façades : 3
Surface du terrain : 248 m²
Jardin
Certificats et attestations
PEB spécifique : 340.00 kWh/m².an
PEB total : 78700 kWh/an
CO2 : 6 kg C02/m².an
Validité certificat : 11/2032
Numéro du certificat : 20221125026662
Certificat électrique : oui, non conforme
Facilités
Raccordements : égout électricité gaz eau
Double vitrage
Description intérieure
Surface habitable : 232.00 m²
Cuisine : 24.00 m²
Chambre 1 : 20.00 m²
Chambre 2 : 27.00 m²
Chambre 3 : 24.00 m²
2 salle(s) de bains
Chaussée Pont du Sart 87 - 7110 La Louvière Houdeng-Aimeries
 
---------- Document informatif et non contractuel ----------
Le positionnement est donné à titre indicatif et n'est absolument pas garanti



Imprimer

Contacter l'agence