Logo ALEX INVEST IMMOBILIER SRL
ALEX INVEST IMMOBILIER SRL
+32 488 32 79 79
Chaussée Paul Houtart 232 - 7110 Houdeng-Goegnies
Recherche par référence :

Réf. : 7212507  Rez-de-chaussée commercial + Appartement 3 chambres à 7100 La Louvière
Maison de commerce de ± 466 m² située en plein centre de La Louvière, à proximité immédiate de toutes les commodités.
Le bien se compose d’un espace commercial et d’un appartement 3 chambres avec entrée séparée.
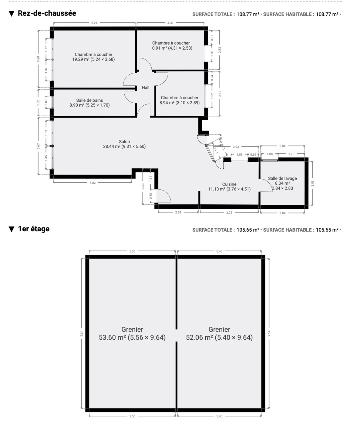
=> Rez-de-chaussée (± 252 m²) : Espace commercial comprenant plusieurs pièces à usage divers (stockage, cuisine, chaufferie, etc.).
=> 1er étage (± 214 m²) : Spacieux appartement comprenant un séjour lumineux de ± 39 m² ouvert sur une cuisine semi-équipée, un hall de nuit, trois chambres (± 9, 11 et 19 m²) ainsi qu’une salle de bain avec WC.
=> 2e étage : Grenier aménageable de ± 100 m² offrant un beau potentiel d’aménagement supplémentaire.
Autres atouts : cave, châssis PVC double vitrage, chauffage central au gaz. ELECTRICITE CONFORME !
Ce bien offre une excellente visibilité grâce à son emplacement stratégique.
Faire offre à partir de 160.000 € (sous réserve d’acceptation par les propriétaires).
À visiter sans tarder !
Photos
Aspects Financiers et légaux
Offre à partir de : 160 000 €
Revenu cadastral : 3924 €
Etat du bien : à rafraîchir
Disponible : en fonct. du locataire
Description extérieure
Nombre de façades : 2
Surface du terrain : 300 m²
Certificats et attestations
PEB spécifique : 391.00 kWh/m².an
PEB total : 60936 kWh/an
CO2 : 110 kg C02/m².an
Validité certificat : 08/2028
Numéro du certificat : 20180830019552
Certificat électrique : oui, conforme
Facilités
Raccordements : électricité gaz eau
Double vitrage
Description intérieure
Surface habitable : 214.00 m²
Chambre 1 : 9.00 m²
Chambre 2 : 11.00 m²
Chambre 3 : 19.00 m²
1 salle(s) de bains
Rue Paul Leduc 20 & - 7100 La Louvière
 
---------- Document informatif et non contractuel ----------
Le positionnement est donné à titre indicatif et n'est absolument pas garanti



Imprimer

Contacter l'agence