Logo ALEX INVEST IMMOBILIER SRL
ALEX INVEST IMMOBILIER SRL
+32 488 32 79 79
Chaussée Paul Houtart 232 - 7110 Houdeng-Goegnies
Recherche par référence :

Réf. : 7203841  *** PLUS DE VISITE POSSIBLE *** Maison 4 Chambres + JARDIN et TERRASSE à 7110 La Louvière Houdeng-Goegnies
*** PLUS DE VISITE POSSIBLE *** Spacieuse maison avec passage latéral, idéalement située à proximité de toutes les commodités.
Celle-ci offre de beaux volumes et un agencement fonctionnel.
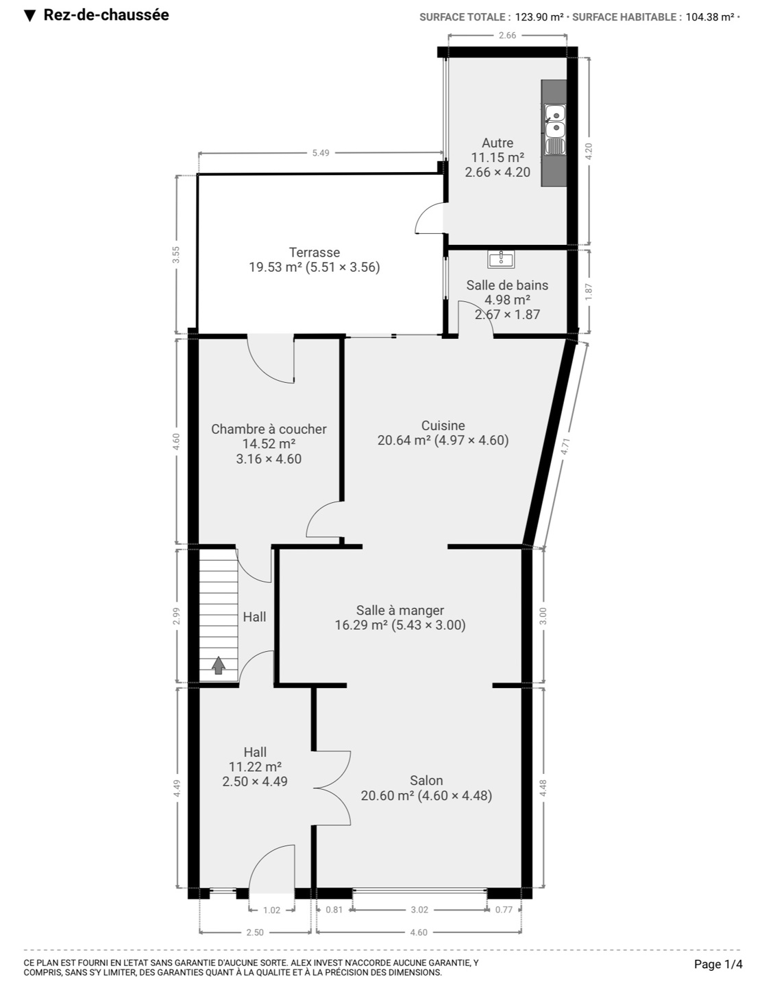
=> Au rez-de-chaussée, grand hall d’entrée menant à un salon lumineux d’environ 21 m², une salle à manger de près de 16 m² ainsi qu’un vaste espace cuisine de ± 21 m² à aménager selon vos goûts et vos besoins. Il comprend également une salle de douche, une arrière-cuisine et une chambre de ± 15 m² pouvant aussi faire office de bureau. Une agréable TERRASSE couverte de ± 20 m² et un JARDIN.
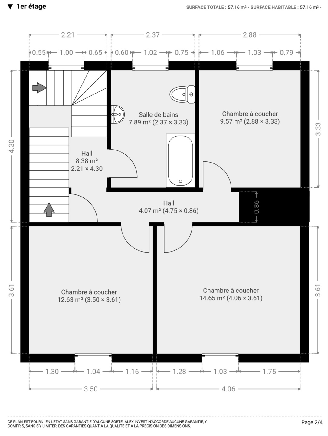
=> À l’étage, le hall de nuit dessert trois chambres de +/- 10, 13 et 15 m² ainsi qu’une salle de bain avec WC.
=> Au deuxième étage, grand GRENIER aménageable.
La maison dispose également d’un sous-sol comprenant trois CAVES, offrant de belles possibilités de rangement.
Le bien est équipé d’un chauffage central au gaz et de châssis en PVC double vitrage.
Faire offre à partir de 179 000 €, sous réserve de l’acceptation des propriétaires.
A visiter sans tarder !!!
Photos
Aspects Financiers et légaux
Offre à partir de : 179 000 €
Revenu cadastral : 728 €
Etat du bien : bon état
Disponible : à l'acte
Description extérieure
Nombre de façades : 3
Surface du terrain : 350 m²
Terrasse
Jardin
Certificats et attestations
PEB spécifique : 487.00 kWh/m².an
PEB total : 88263 kWh/an
CO2 : 89 kg C02/m².an
Validité certificat : 10/2035
Numéro du certificat : 20251029002197
Facilités
Raccordements : égout électricité gaz eau
Double vitrage
Description intérieure
Surface habitable : 181.00 m²
Cuisine : 21.00 m²
Chambre 1 : 15.00 m²
Chambre 2 : 13.00 m²
Chambre 3 : 15.00 m²
Chambre 4 : 10.00m²
2 salle(s) de bains
Chaussée Paul Houtart 191 - 7110 La Louvière Houdeng-Goegnies
 
---------- Document informatif et non contractuel ----------
Le positionnement est donné à titre indicatif et n'est absolument pas garanti



Imprimer

Contacter l'agence