Logo ALEX INVEST IMMOBILIER SRL
ALEX INVEST IMMOBILIER SRL
+32 488 32 79 79
Chaussée Paul Houtart 232 - 7110 Houdeng-Goegnies
Recherche par référence :

Réf. : 7128753  Superbe maison bel-étage 3 Chambres – Parfait état général à 7110 La Louvière Houdeng-Goegnies
Construite en 2014, cette belle maison bel-étage vous séduira par son excellent état, ses finitions soignées et ses équipements modernes.
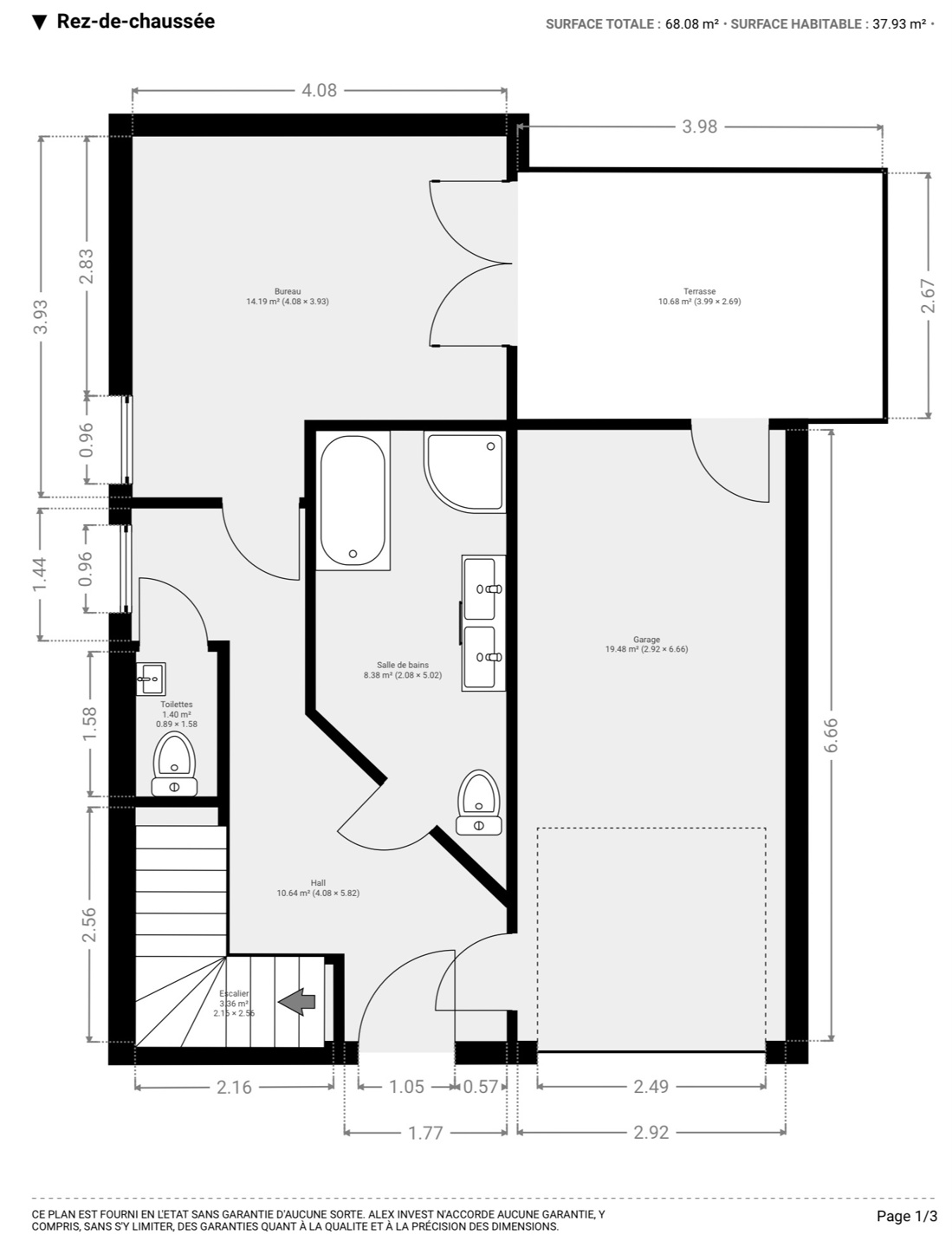
=> Le rez-de-chaussée se compose d’un hall d’entrée, d’une salle de bain avec WC, d’un bureau ou chambre de ±14 m², d’un WC séparé, ainsi que d’un garage avec espace buanderie. Vous profiterez également d’une agréable terrasse cosy de ±11 m², idéale pour vos moments de détente.
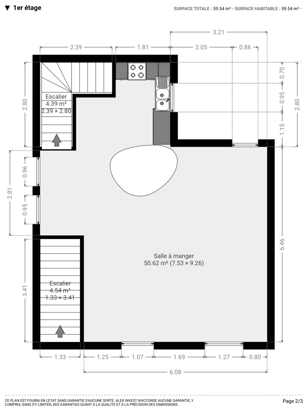
=> Au premier étage, une vaste pièce de vie de ±51 m² vous accueille, avec une cuisine équipée ouverte, parfaite pour les repas en famille ou entre amis.
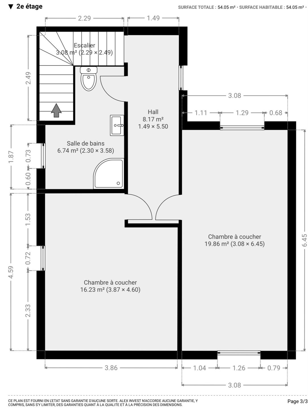
=> Le deuxième étage comprend un hall de nuit, une salle de douche avec WC, ainsi que deux grandes chambres de ±16 m² et ±20 m².
La maison est équipée de châssis PVC triple vitrage, d’un chauffage central au gaz, d’un système de climatisation chaud/froid avec pompe à chaleur, d’un adoucisseur d’eau, et offre une belle hauteur sous plafond de 2,72 m. ELECTRICITE CONFORME.
Faire offre à partir de 239.000 €, sous réserve de l’acceptation des propriétaires.
Venez visiter votre future maison sans tarder !
Photos
Aspects Financiers et légaux
Offre à partir de : 239 000 €
Revenu cadastral : 883 €
Etat du bien : excellent état
Disponible : à l'acte
Description extérieure
Nombre de façades : 3
Surface du terrain : 98 m²
Terrasse
Certificats et attestations
PEB spécifique : 149.00 kWh/m².an
PEB total : 24902 kWh/an
CO2 : 32 kg C02/m².an
Validité certificat : 10/2035
Numéro du certificat : 20251008006444
Certificat électrique : oui, conforme
Facilités
Raccordements : égout électricité gaz eau
Description intérieure
Surface habitable : 167.00 m²
Chambre 1 : 20.00 m²
Chambre 2 : 16.00 m²
Chambre 3 : 14.00 m²
2 salle(s) de bains
Chaussée Paul Houtart 320 - 7110 La Louvière Houdeng-Goegnies
 
---------- Document informatif et non contractuel ----------
Le positionnement est donné à titre indicatif et n'est absolument pas garanti



Imprimer

Contacter l'agence