Logo ALEX INVEST IMMOBILIER SRL
ALEX INVEST IMMOBILIER SRL
+32 488 32 79 79
Chaussée Paul Houtart 232 - 7110 Houdeng-Goegnies
Recherche par référence :

Réf. : 7051987  *** PLUS DE VISITE POSSIBLE / SOUS-COMPROMIS *** Jolie maison rénovée 2 ch (possibilité de +) avec jardin à 7110 La Louvière Houdeng-Goegnies
*** PLUS DE VISITE POSSIBLE / SOUS-COMPROMIS *** Cette jolie maison 3 façades avec VUE DEGAGEE sur les champs vous ravira par sa rénovation!
Elle se compose comme suit:
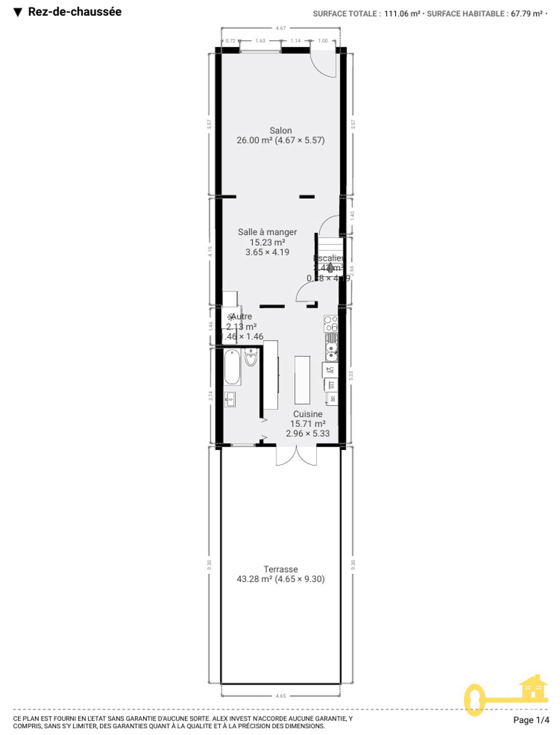
RDC: SALON SPACIEUX de +- 26 m², salle à manger semi-ouverte sur une cuisine SUPER-EQUIPEE avec ilot central proposant un espace dinatoire. La cuisine est dotée de très nombreux rangements et dispose d'un espace buanderie. Une porte fenêtre donne accès à la terrasse. Salle de bain avec bain, lavabo et WC.
1e ETAGE: hall de nuit, 2 grandes chambres de +- 20 m² et +- 15 m².
2e ETAGE: grenier de +- 40 m², accessible par un escalier fixe. Ce GRENIER peut être facilement aménagé: les arrivées pour l'électricité et les tuyaux de chauffage ainsi que les velux sont déjà là!
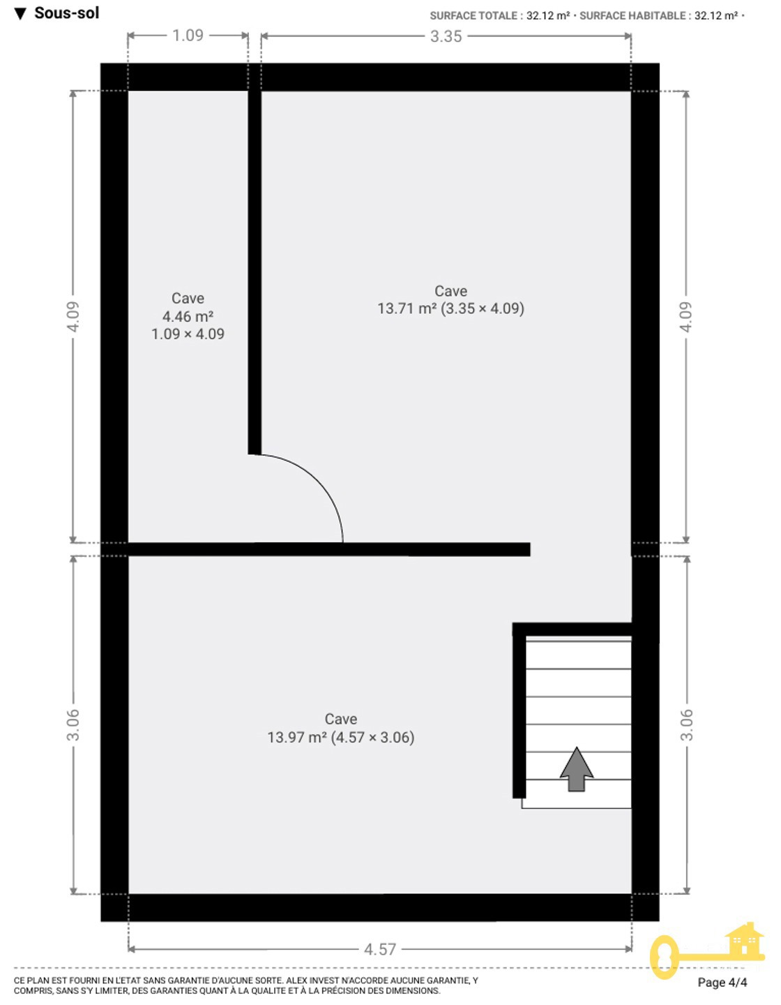
SOUS-SOL: CAVES carrelées.
EXTERIEUR: GRANDE TERRASSE de +- 43 m² dont une partie est couverte! Jardin avec chalet.
Châssis PVC double vitrage, volets à l'étage et en façade au RDC, chauffage central au gaz. PEB C!!!
Faire offre à partir de 189.000€, sous réserve d'acceptation par les propriétaires. Si ce bien vous intéresse, surtout, ne tardez pas!
Photos
Aspects Financiers et légaux
Offre à partir de : 189 000 €
Revenu cadastral : 459 €
Etat du bien : excellent état
Disponible : à l'acte
Description extérieure
Nombre de façades : 3
Surface du terrain : 250 m²
Terrasse
Jardin
Orientation du jardin : Est
Certificats et attestations
PEB spécifique : 190.00 kWh/m².an
PEB total : 29977 kWh/an
CO2 : 35 kg C02/m².an
Validité certificat : 05/2033
Numéro du certificat : 20230516035922
Certificat électrique : non
Facilités
Raccordements : égout électricité gaz eau
Double vitrage
Description intérieure
Surface habitable : 158.00 m²
Cuisine : 16.00 m²
Chambre 1 : 20.00 m²
Chambre 2 : 15.00 m²
1 salle(s) de bains
Cave
Grenier
Rue Trieu à Vallée 122 - 7110 La Louvière Houdeng-Goegnies
 
---------- Document informatif et non contractuel ----------
Le positionnement est donné à titre indicatif et n'est absolument pas garanti



Imprimer

Contacter l'agence