Logo ALEX INVEST IMMOBILIER SRL
ALEX INVEST IMMOBILIER SRL
+32 488 32 79 79
Chaussée Paul Houtart 232 - 7110 Houdeng-Goegnies
Recherche par référence :

Réf. : 7228623  Charmante VILLA 4 façades avec JARDIN et GARAGE à 7100 La Louvière Besonrieux
Découvrez cette belle VILLA idéalement située dans un quartier recherché, implantée sur un vaste terrain de 31 ares et 15 centiares. Cette propriété offre de beaux volumes, une disposition fonctionnelle et un cadre de vie verdoyant, à la fois calme et proche de toutes les commodités.
=> Le rez-de-chaussée s’ouvre sur un grand hall d’entrée avec mezzanine, menant vers un séjour lumineux de ± 33 m², une cuisine équipée avec espace dinatoire et une agréable véranda ouverte sur le jardin. Un hall secondaire dessert un WC séparé, une chambre de ± 14 m², une salle de bain, une buanderie et un GRAND GARAGE.
=> À l’étage, le hall de nuit mène à une chambre spacieuse de ± 23 m² avec espace de rangement, une salle de douche avec WC, ainsi qu’une grande pièce de ± 36 m² à aménager selon vos envies — possibilité de créer deux chambres supplémentaires ou un bel espace polyvalent.
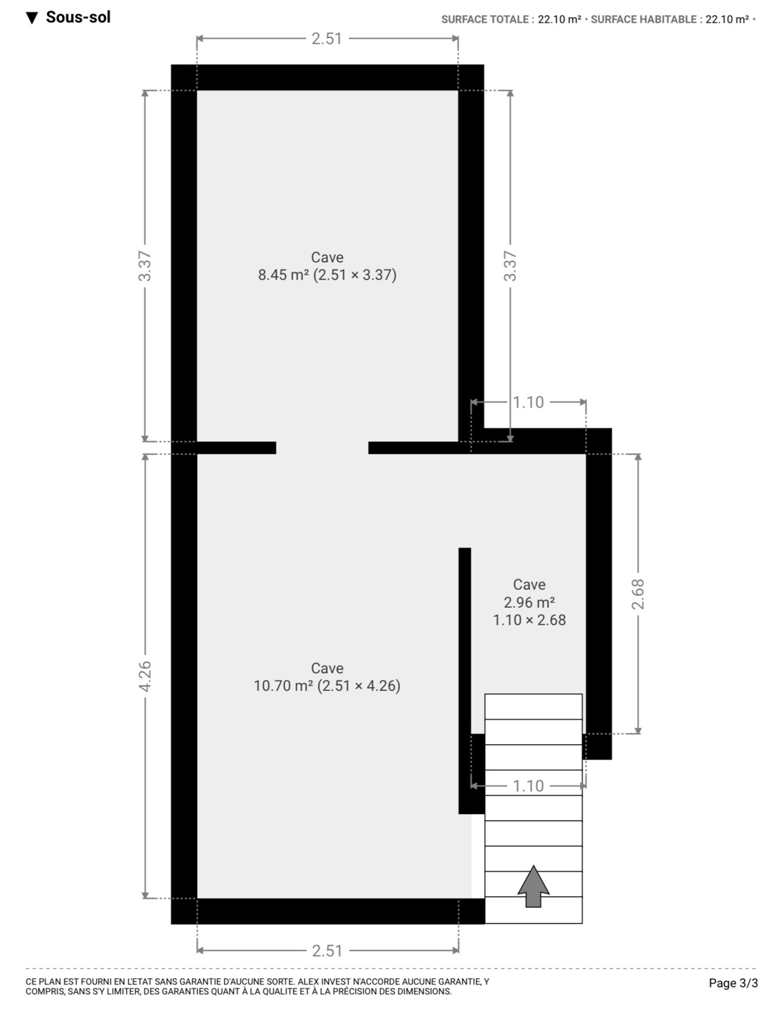
Le sous-sol comprend plusieurs caves carrelées ainsi qu’un atelier, parfait pour le rangement ou les activités de bricolage.
À l’extérieur, vous profiterez d’un magnifique JARDIN arboré, véritable havre de paix pour les amoureux de la nature.
Cette belle opportunité est proposée à partir de 289.000 €, sous réserve d’acceptation des propriétaires.
Une villa au charme indéniable, offrant espace, confort et potentiel, à découvrir sans tarder !
Photos
Aspects Financiers et légaux
Offre à partir de : 289 000 €
Revenu cadastral : 872 €
Etat du bien : bon état
Disponible : à l'acte
Description extérieure
Nombre de façades : 4
Surface du terrain : 3115 m²
Terrasse
Jardin
Certificats et attestations
PEB spécifique : 378.00 kWh/m².an
PEB total : 69436 kWh/an
CO2 : 69 kg C02/m².an
Validité certificat : 11/2035
Numéro du certificat : 20251109008155
Facilités
Raccordements : égout électricité gaz eau
Double vitrage
Description intérieure
Cuisine : 11.00 m²
Chambre 1 : 14.00 m²
Chambre 2 : 23.00 m²
Chambre 3 : 36.00 m²
2 salle(s) de bains
Rue de l'Yser 42 - 7100 La Louvière Besonrieux
 
---------- Document informatif et non contractuel ----------
Le positionnement est donné à titre indicatif et n'est absolument pas garanti



Imprimer

Contacter l'agence