Logo ALEX INVEST IMMOBILIER SRL
ALEX INVEST IMMOBILIER SRL
+32 488 32 79 79
Chaussée Paul Houtart 232 - 7110 Houdeng-Goegnies
Recherche par référence :

Réf. : 7222577  Spacieuse maison 4 chambres avec GARAGE et grande TERRASSE à 7110 La Louvière Houdeng-Aimeries
Découvrez cette belle et spacieuse maison en très bon état, idéalement située dans un quartier calme tout en restant proche de toutes les commodités. Elle séduira par ses beaux volumes, son confort et son parfait entretien.
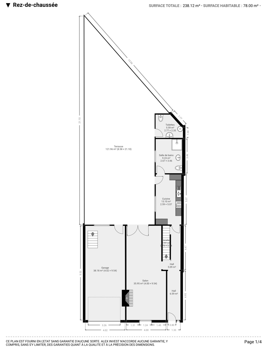
=> Le rez-de-chaussée s’ouvre sur un hall d’entrée menant vers un vaste séjour lumineux de ± 36 m², ouvert sur une magnifique TERRASSE d’environ 90 m². Vous y trouverez également une cuisine équipée avec espace dinatoire, une salle de douche avec WC, ainsi qu’un WC séparé.
Un GARAGE double permet d’accueillir deux véhicules et dispose d’un GRENIER de rangement de ± 38 m², ainsi qu’une CAVE indépendante sous le garage, offrant un espace de stockage supplémentaire particulièrement pratique.
=> Au 1er étage, le hall de nuit dessert deux chambres spacieuses de ± 16 m² et 24 m².
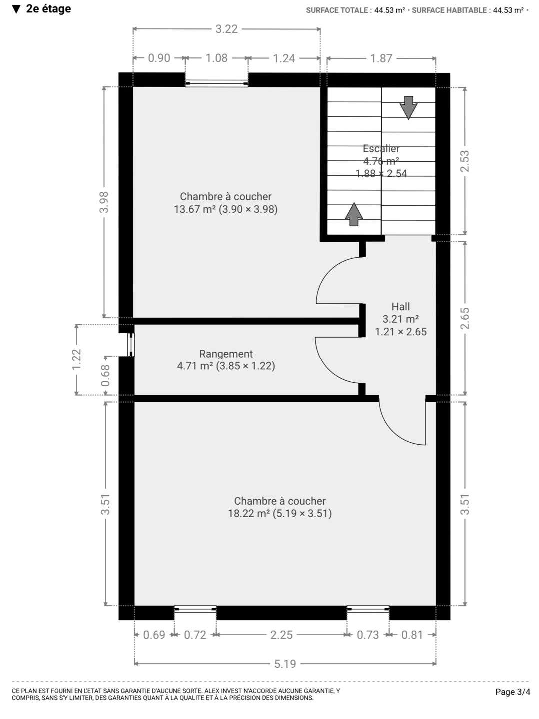
=> Au 2ème étage, un hall de nuit mène à deux autres chambres de ± 14 m² et 18 m², ainsi qu’à un espace de rangement d’environ 5 m².
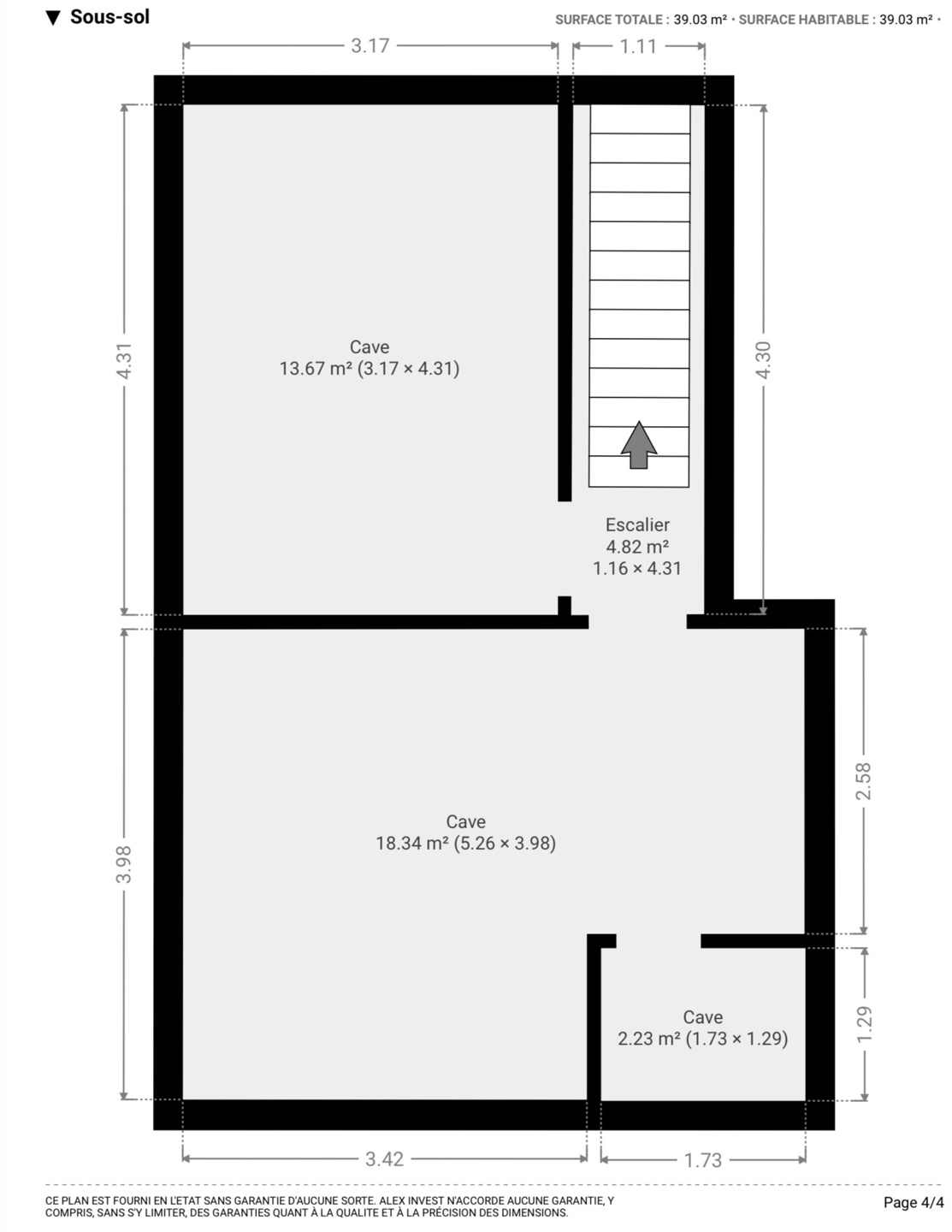
La maison comprend plusieurs CAVES entièrement carrelées !
Côté confort, la maison est équipée de châssis PVC double vitrage avec volets dans toutes les pièces, d’une chaudière au gaz récente, d’une toiture rénovée et d’un adoucisseur d’eau.
Cette belle opportunité est proposée à partir de 249.000 €, sous réserve d’acceptation des propriétaires.
Une maison alliant espace, confort et tranquillité, prête à accueillir votre famille ! Appelez-nous !
Photos
Aspects Financiers et légaux
Offre à partir de : 249 000 €
Revenu cadastral : 738 €
Etat du bien : bon état
Disponible : à l'acte
Description extérieure
Nombre de façades : 3
Surface du terrain : 270 m²
Terrasse
Jardin
Certificats et attestations
PEB spécifique : 378.00 kWh/m².an
PEB total : 78010 kWh/an
CO2 : 72 kg C02/m².an
Validité certificat : 11/2035
Numéro du certificat : 20251103037077
Certificat électrique : oui, non conforme
Facilités
Raccordements : égout électricité gaz eau
Double vitrage
Description intérieure
Surface habitable : 206.00 m²
Cuisine : 13.00 m²
Chambre 1 : 16.00 m²
Chambre 2 : 24.00 m²
Chambre 3 : 14.00 m²
Chambre 4 : 18.00m²
1 salle(s) de bains
Rue Eugène Valentin 30 - 7110 La Louvière Houdeng-Aimeries
 
---------- Document informatif et non contractuel ----------
Le positionnement est donné à titre indicatif et n'est absolument pas garanti



Imprimer

Contacter l'agence