Logo ALEX INVEST IMMOBILIER SRL
ALEX INVEST IMMOBILIER SRL
+32 488 32 79 79
Chaussée Paul Houtart 232 - 7110 Houdeng-Goegnies
Recherche par référence :

Réf. : 6983822  *** VENDU *** Maison de plein pied 2 chambres (accès PMR) à 7100 La Louvière Trivières
*** VENDU *** Ce plein pied, à l'abri des regards, est accessible aux PMR et idéalement situé: petits commerces ou grandes surfaces, transports en commun, écoles sont accessibles à pied.
Il se compose comme suit:
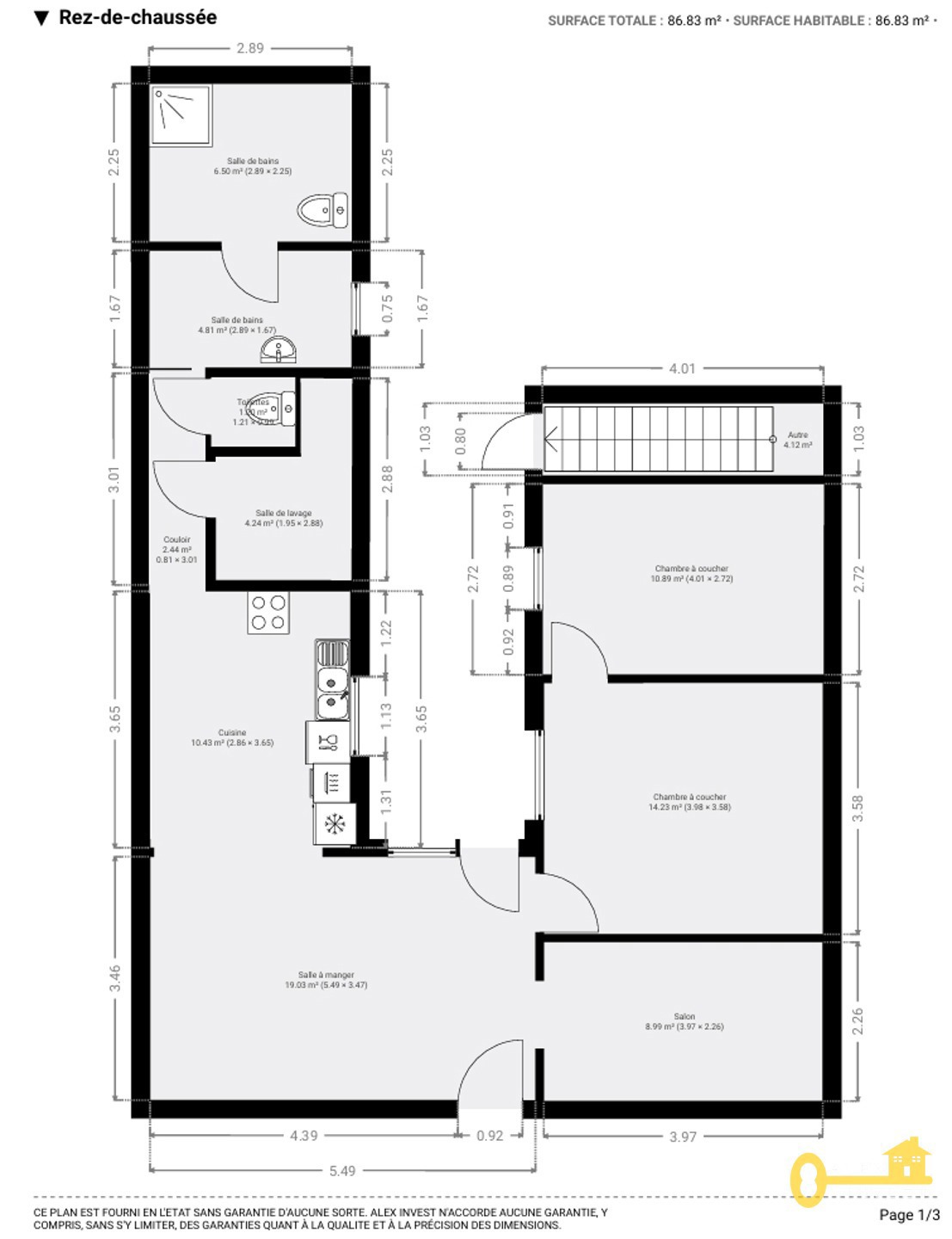
Grande salle à manger de +-19m², salon, cuisine super-équipée, BUANDERIE, wc, salle de bain avec douche et wc, 2 chambres dont l'une avec un espace grenier accessible par une échelle de meunier rabattable.
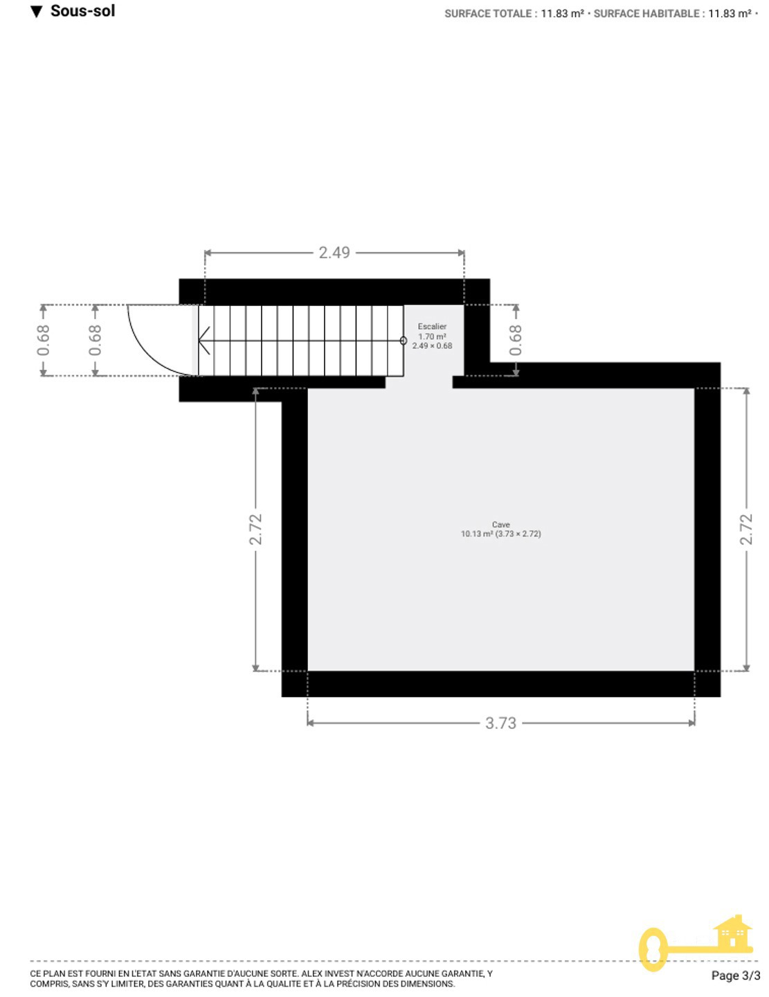
COUR, petite remise et accès à la CAVE de +- 10 m².
Châssis en PVC ou en bois double vitrage, chauffage central au gaz, compteur bi-horaire.
Faire offre à partir de 95.000€, sous réserve d'acceptation par les propriétaires. Ce bien vous intéresse? Contactez AlexInvest!
Photos
Aspects Financiers et légaux
Désolé, ce bien n'est plus disponible
Description extérieure
Nombre de façades : 2
Surface du terrain : 143 m²
Documents associés au bien
Certificats et attestations
PEB spécifique : 544.00 kWh/m².an
PEB total : 58766 kWh/an
CO2 : 100 kg C02/m².an
Validité certificat : 07/2035
Numéro du certificat : 20250717012913
Facilités
Raccordements : égout électricité gaz eau
Accès handicapé
Double vitrage
Description intérieure
Surface habitable : 108.00 m²
Chambre 1 : 14.00 m²
Chambre 2 : 10.00 m²
1 salle(s) de bains
Buanderie
Cave
Grenier
Rue François Dieudonné 39 - 7100 La Louvière Trivières
 
---------- Document informatif et non contractuel ----------
Le positionnement est donné à titre indicatif et n'est absolument pas garanti



Imprimer

Contacter l'agence