Logo ALEX INVEST IMMOBILIER SRL
ALEX INVEST IMMOBILIER SRL
+32 488 32 79 79
Chaussée Paul Houtart 232 - 7110 Houdeng-Goegnies
Recherche par référence :

Réf. : 5305082  *** PLUS DE VISITE POSSIBLE / SOUS-COMPROMIS *** Maison 3 façades avec jardin, BEAU POTENTIEL ! à 7020 Mons Nimy
*** PLUS DE VISITE POSSIBLE / SOUS-COMPROMIS *** Maison 3 façades avec beau potentiel, proche UMons, HELHa, grands axes et toute autre commodité.
RDC: hall d'entrée avec double porte donnant sur un SPACIEUX SEJOUR de +-33 m2, une salle à manger, une cuisine équipée avec accès au jardin, un wc et une salle de bain.
1 er ETAGE: 2 grandes chambres (+-22 et +- 16 m2).
2ème ETAGE: grenier aménageable accessible par un escalier fixe.
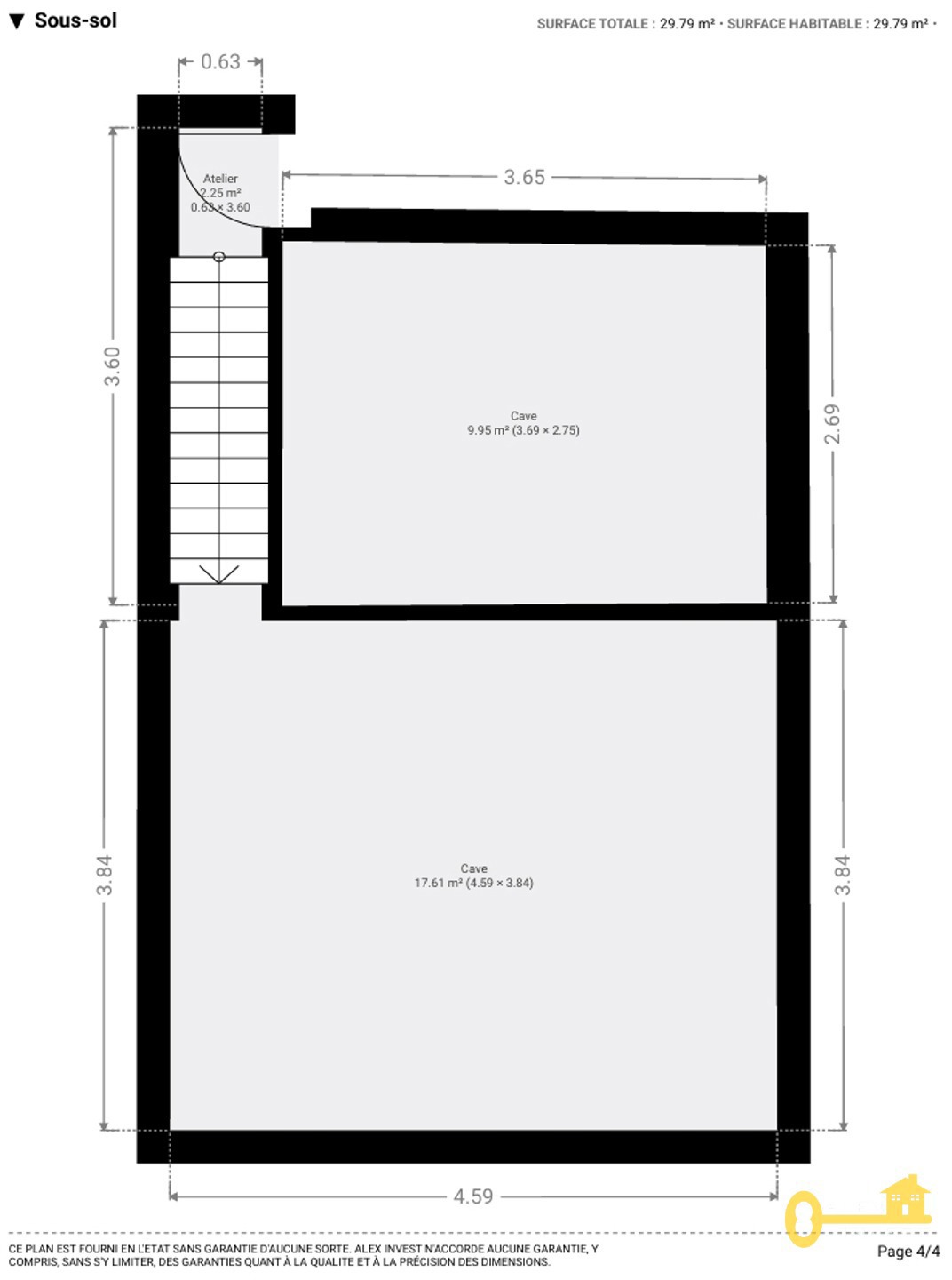
SOUS-SOL: 2 CAVES
EXTERIEUR: terrasse, remise de +- 8 m2 et JARDIN arboré.
Chauffage central au gaz, châssis PVC double vitrage (sauf wc et SDB), compteur bi-horaire, volet en façade (RDC).
Faire offre à partir de 140.000€, sous réserve d'acceptation par les propriétaires. Idéal pour une famille ou en faire une colocation pour étudiants.
Photos
Aspects Financiers et légaux
Offre à partir de : 140 000 €
Revenu cadastral : 518 €
Etat du bien : bon état
Disponible : à l'acte
Description extérieure
Nombre de façades : 3
Surface du terrain : 249 m²
Terrasse
Jardin
Orientation du jardin : Ouest
Certificats et attestations
PEB spécifique : 521.00 kWh/m².an
PEB total : 63232 kWh/an
CO2 : 95 kg C02/m².an
Validité certificat : 04/2033
Numéro du certificat : 20230426034186
Certificat électrique : non
Facilités
Raccordements : égout électricité gaz eau
Description intérieure
Surface habitable : 121.00 m²
Chambre 1 : 16.00 m²
Chambre 2 : 22.00 m²
1 salle(s) de bains
Cave
Grenier
Rue Théophile Massart 43 - 7020 Mons Nimy
 
---------- Document informatif et non contractuel ----------
Le positionnement est donné à titre indicatif et n'est absolument pas garanti



Imprimer

Contacter l'agence