Logo ALEX INVEST IMMOBILIER SRL
ALEX INVEST IMMOBILIER SRL
+32 488 32 79 79
Chaussée Paul Houtart 232 - 7110 Houdeng-Goegnies
Recherche par référence :

Réf. : 5134890  *** PLUS DE VISITE POSSIBLE *** Maison 2 chambres avec JARDIN à 7170 Fayt -Lez-Manage
*** PLUS DE VISITE POSSIBLE *** Maison 2 ch à rénover + JARDIN
Proche de toutes les commodités, cette maison se compose comme suit:
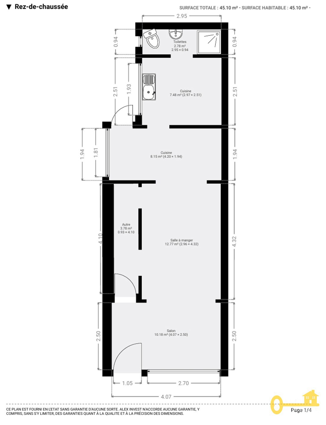
REZ: séjour de +- 24m2 donnant sur un espace pouvant servir de bureau ou salle de jeux, une cuisine et une salle de douche avec WC.
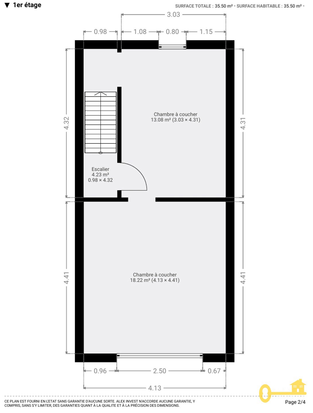
1er ETAGE: 2 chambres.
2ème ETAGE: grenier aménageable accessible par un escalier fixe.
SOUS-SOL: CAVE.
Extérieur: petit JARDIN avec terrasse (+-6m2) accessible par des escaliers.
Chaudière au gaz de ville (Bulex), châssis en PVC double vitrage. Possibilité de faire un commerce au rez-de--chaussée.
Faire offre à partir de 99.000€ sous réserve d'acceptation par les propriétaires.
Photos
Aspects Financiers et légaux
Offre à partir de : 99 000 €
Revenu cadastral : 657 €
Etat du bien : à rénover
Disponible : à l'acte
Description extérieure
Nombre de façades : 2
Surface du terrain : 135 m²
Terrasse
Jardin
Orientation du jardin : Est
Documents associés au bien
Certificats et attestations
PEB spécifique : 481.00 kWh/m².an
PEB total : 61106 kWh/an
CO2 : 99 kg C02/m².an
Validité certificat : 05/2035
Numéro du certificat : 20250516019524
Certificat électrique : oui, non conforme
Facilités
Raccordements : égout électricité gaz eau
Double vitrage
Description intérieure
Surface habitable : 127.00 m²
Chambre 1 : 13.00 m²
Chambre 2 : 18.00 m²
1 salle(s) de bains
Cave
Grenier
Avenue Emile Herman 229 - 7170 Fayt -Lez-Manage
 
---------- Document informatif et non contractuel ----------
Le positionnement est donné à titre indicatif et n'est absolument pas garanti



Imprimer

Contacter l'agence