Logo ALEX INVEST IMMOBILIER SRL
ALEX INVEST IMMOBILIER SRL
+32 488 32 79 79
Chaussée Paul Houtart 232 - 7110 Houdeng-Goegnies
Recherche par référence :

Réf. : 7228282  Maison 3 Façades, 3 Chambres et Jardin à 7110 La Louvière Strépy-Bracquegnies

Charmante maison 3 façades idéalement située dans un quartier calme tout en restant proche de toutes les commodités. Elle offre de beaux espaces et une configuration agréable pour la vie de tous les jours.
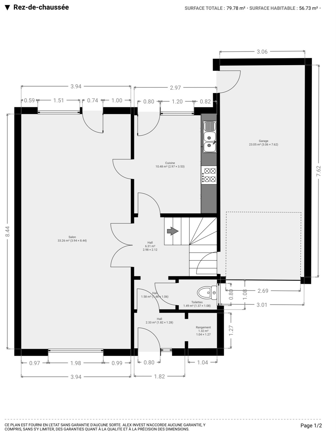
Elle se compose comme suit :
=> Au rez-de-chaussée, un hall d’entrée, un espace de rangement, un WC séparé, un hall menant à un séjour lumineux d’environ 33 m² ainsi qu’à une cuisine avec espace dinatoire. Un spacieux GARAGE de 23 m², équipé d’une porte motorisée et d’un espace buanderie. La maison dispose également d’un JARDIN, parfait pour profiter des beaux jours.
=> À l’étage, le hall de nuit dessert trois chambres de +/- 18, 16 et 11m2, un WC séparé, une salle de bain ainsi qu’un espace de rangement supplémentaire.
Faire offre à partir de 195.000 €, sous réserve de l’acceptation des propriétaires.
A visiter sans tarder !!!

Photos
Aspects Financiers et légaux
Offre à partir de : 195 000 €
Revenu cadastral : 701 €
Disponible : en fonct. du propriétaire
Description extérieure
Nombre de façades : 3
Surface du terrain : 428 m²
Jardin
Certificats et attestations
PEB spécifique : 314.00 kWh/m².an
PEB total : 50661 kWh/an
CO2 : 57 kg C02/m².an
Validité certificat : 11/2035
Numéro du certificat : 20251107010939
Certificat électrique : oui, non conforme
Facilités
Raccordements : égout électricité gaz eau
Double vitrage
Description intérieure
Surface habitable : 161.00 m²
Cuisine : 10.00 m²
Chambre 1 : 16.00 m²
Chambre 2 : 18.00 m²
Chambre 3 : 11.00 m²
1 salle(s) de bains
Rue de la Bourse 56 - 7110 La Louvière Strépy-Bracquegnies
 
---------- Document informatif et non contractuel ----------
Le positionnement est donné à titre indicatif et n'est absolument pas garanti



Imprimer

Contacter l'agence