Logo ALEX INVEST IMMOBILIER SRL
ALEX INVEST IMMOBILIER SRL
+32 488 32 79 79
Chaussée Paul Houtart 232 - 7110 Houdeng-Goegnies
Recherche par référence :

Réf. : 7220403  *** PLUS DE VISITE POSSIBLE *** Maison bel-étage avec GARAGE et TERRASSE à 7130 Binche
*** PLUS DE VISITE POSSIBLE *** Maison bel-étage idéalement située à proximité de toutes les facilités. Elle se compose comme suit :
=> Au rez-de-chaussée, un spacieux hall d’entrée avec placards de rangement, un GARAGE, une pièce polyvalente de ± 13 m² pouvant être aménagée selon vos envies, une grande buanderie de ± 12 m², une salle de bain avec WC ainsi qu’une TERRASSE d’environ 12 m².
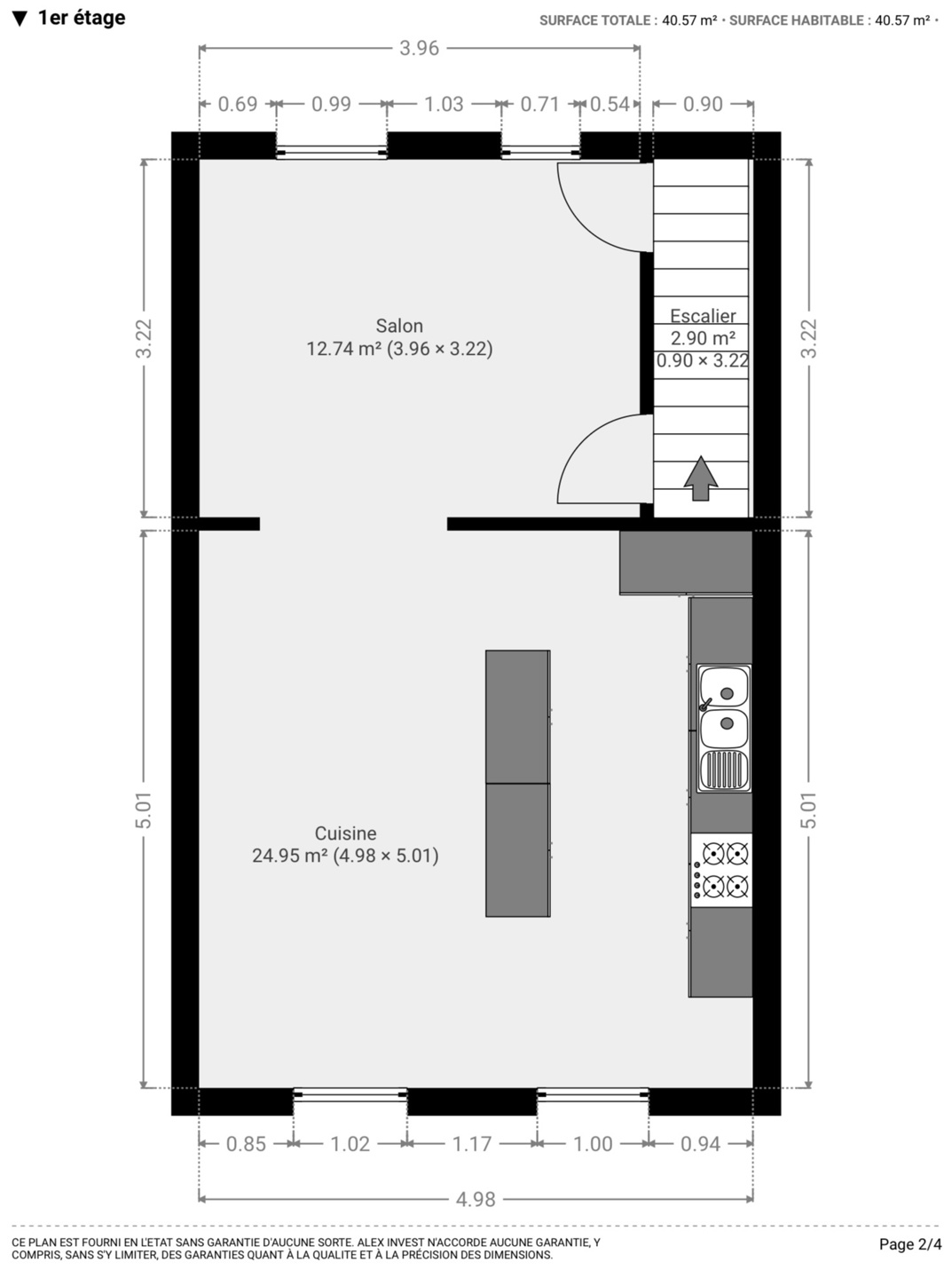
=> Au 1er étage, vous trouverez un salon lumineux de ± 13 m² ainsi qu’une grande cuisine équipée avec espace dinatoire de ± 25 m².
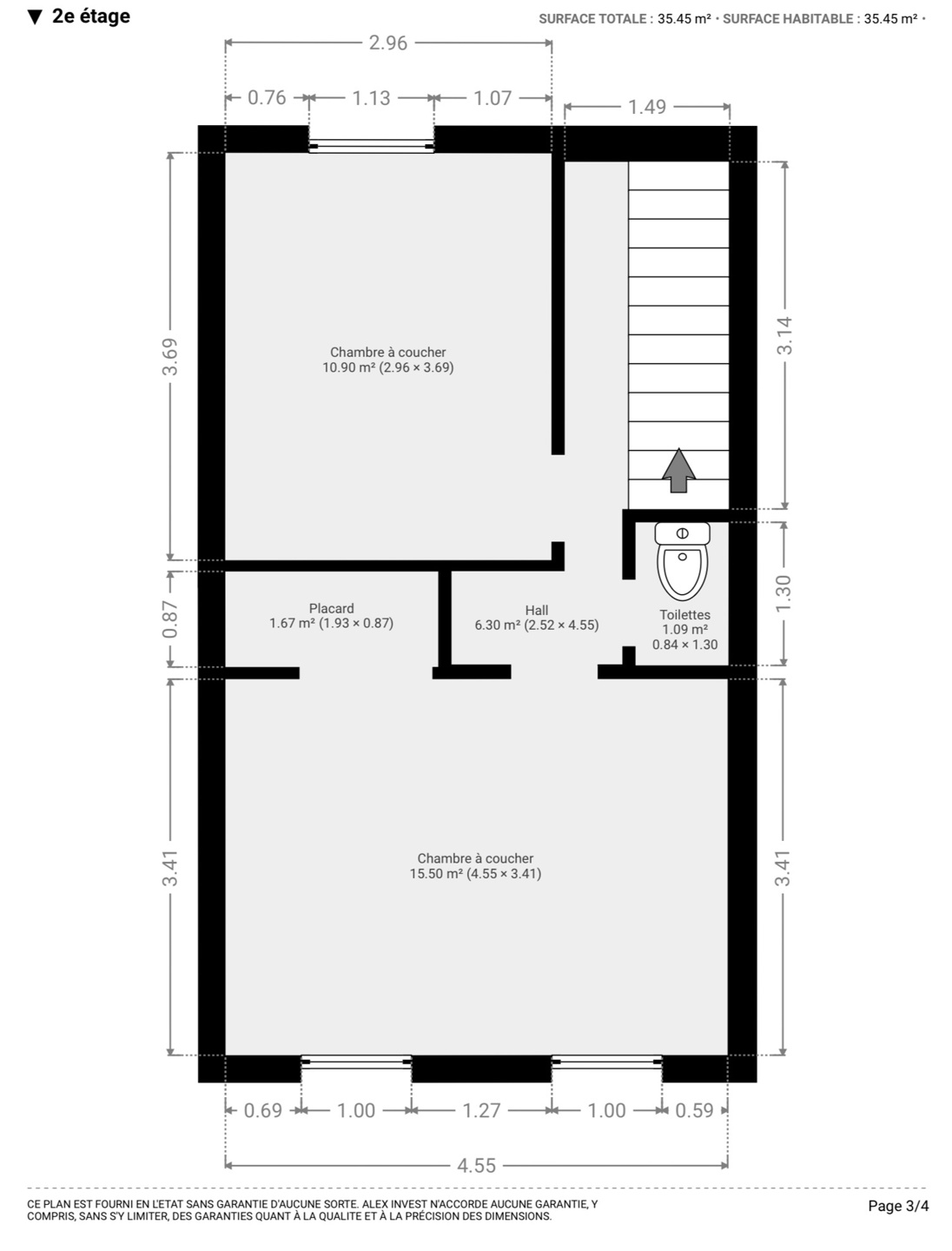
=> Au 2ème étage, un hall de nuit dessert un WC séparé et deux chambres de 11 m² et 16 m², dont une munie d’un espace de rangement intégré.
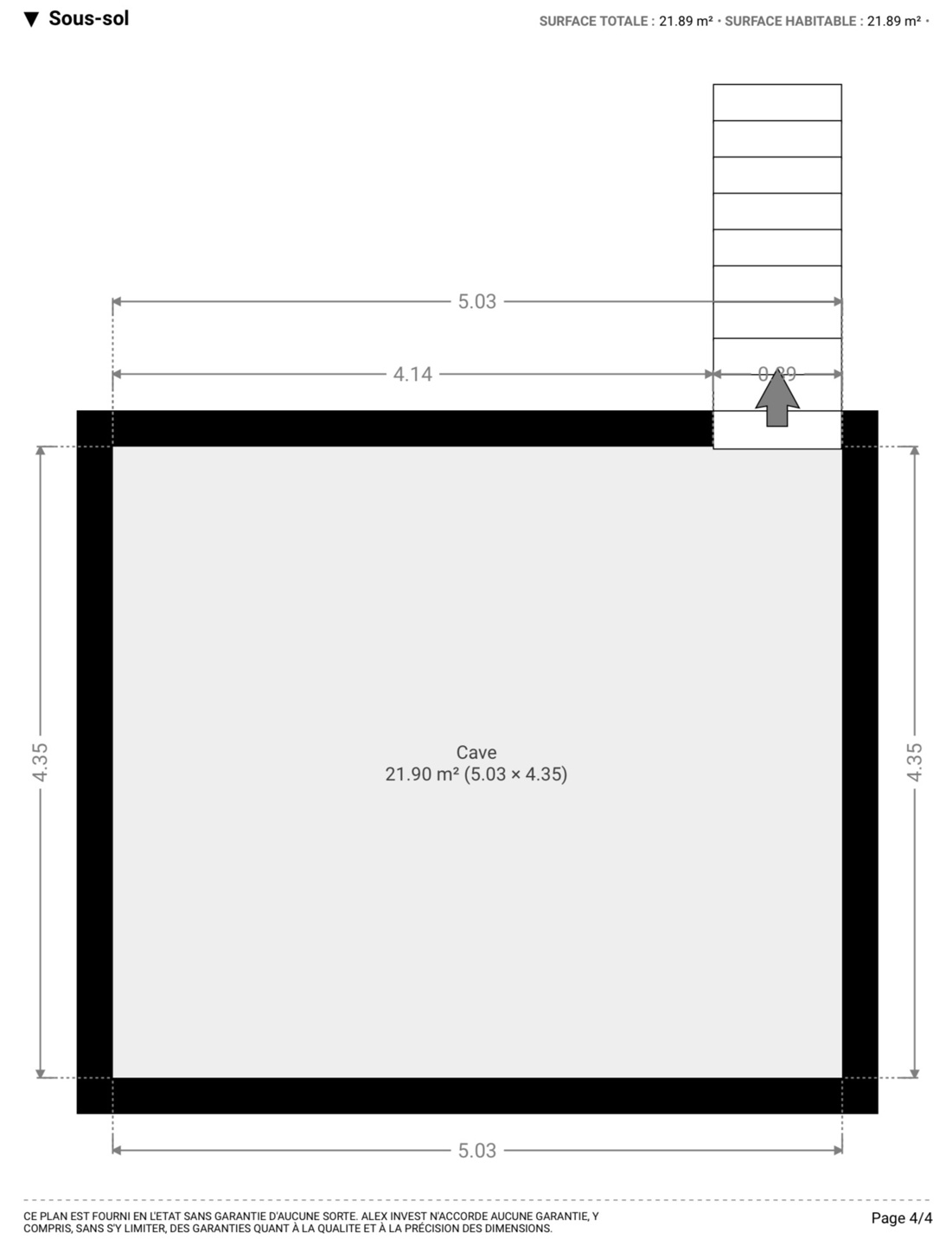
La maison dispose également d’une cave et est équipée d’un chauffage central au gaz.
Faire offre à partir de 85.000 €, sous réserve de l’acceptation des propriétaires.
N’hésitez pas à nous contacter rapidement pour organiser une visite.
Photos
Aspects Financiers et légaux
Offre à partir de : 85 000 €
Revenu cadastral : 391 €
Etat du bien : à rafraîchir
Disponible : à l'acte
Description extérieure
Nombre de façades : 2
Surface du terrain : 80 m²
Terrasse
Certificats et attestations
PEB spécifique : 399.00 kWh/m².an
PEB total : 62478 kWh/an
CO2 : 73 kg C02/m².an
Validité certificat : 11/2035
Numéro du certificat : 20251110016079
Certificat électrique : oui, non conforme
Facilités
Raccordements : égout électricité gaz eau
Double vitrage
Description intérieure
Surface habitable : 157.00 m²
Cuisine : 25.00 m²
Chambre 1 : 11.00 m²
Chambre 2 : 16.00 m²
1 salle(s) de bains
Rue de Merbes 55 - 7130 Binche
 
---------- Document informatif et non contractuel ----------
Le positionnement est donné à titre indicatif et n'est absolument pas garanti



Imprimer

Contacter l'agence