Logo ALEX INVEST IMMOBILIER SRL
ALEX INVEST IMMOBILIER SRL
+32 488 32 79 79
Chaussée Paul Houtart 232 - 7110 Houdeng-Goegnies
Recherche par référence :

Réf. : 7180460  Charmante maison au cœur de Le Roeulx à 7070 Le Rœulx
Située en plein centre de Le Roeulx, cette petite maison pleine de charme est idéale pour un premier achat, un investissement ou un pied-à-terre.
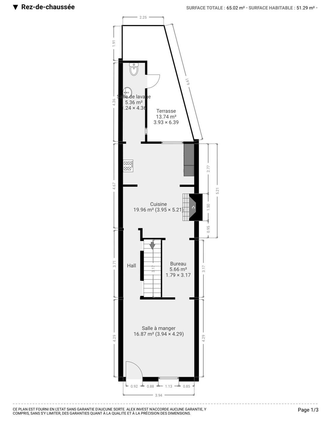
=> Au rez-de-chaussée, vous découvrirez un salon, un bureau, une cuisine semi-équipée avec espace dinatoire, ainsi qu’une buanderie comprenant un WC et un évier. Une PETITE COUR vient compléter cet étage.
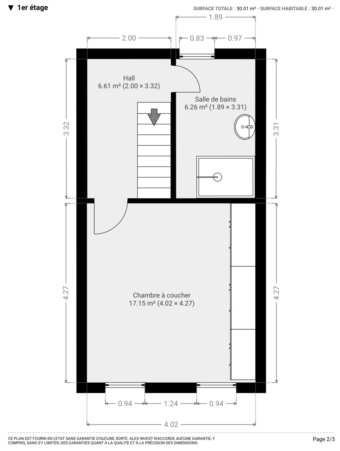
=> Au 1er étage, un hall de nuit dessert une salle de douche et une grande chambre de +/- 17 m² avec placards intégrés.
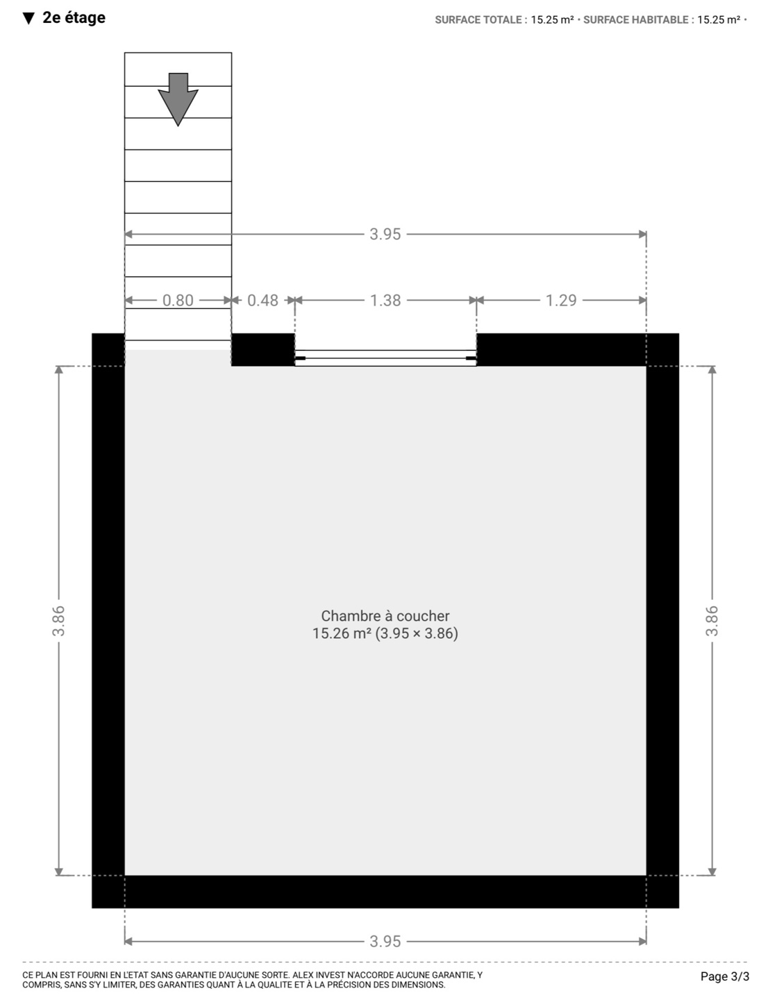
=> Le 2ème étage accueille une seconde chambre de +/- 15 m², également dotée de rangements.
=> Cave
Faire offre à partir de 89.000 €, sous réserve de l’acceptation des propriétaires.
Ne tardez pas à prendre rendez-vous pour une visite ! Cette maison a tout pour vous séduire.
Photos
Aspects Financiers et légaux
Offre à partir de : 89 000 €
Revenu cadastral : 352 €
Etat du bien : bon état
Disponible : à l'acte
Description extérieure
Nombre de façades : 2
Surface du terrain : 75 m²
Terrasse
Certificats et attestations
PEB spécifique : 401.00 kWh/m².an
PEB total : 42696 kWh/an
CO2 : 73 kg C02/m².an
Validité certificat : 10/2035
Numéro du certificat : 20251015014585
Certificat électrique : oui, non conforme
Facilités
Raccordements : égout électricité gaz eau
Double vitrage
Description intérieure
Surface habitable : 107.00 m²
Cuisine : 20.00 m²
Chambre 1 : 17.00 m²
Chambre 2 : 15.00 m²
1 salle(s) de bains
Rue Courte 4 - 7070 Le Rœulx
 
---------- Document informatif et non contractuel ----------
Le positionnement est donné à titre indicatif et n'est absolument pas garanti



Imprimer

Contacter l'agence