Logo ALEX INVEST IMMOBILIER SRL
ALEX INVEST IMMOBILIER SRL
+32 488 32 79 79
Chaussée Paul Houtart 232 - 7110 Houdeng-Goegnies
Recherche par référence :

Réf. : 7129510  Maison 3 Chambres avec JARDIN à 7110 La Louvière Houdeng-Aimeries
Située dans un quartier calme, cette maison à rafraîchir offre un beau potentiel après quelques travaux de modernisation.
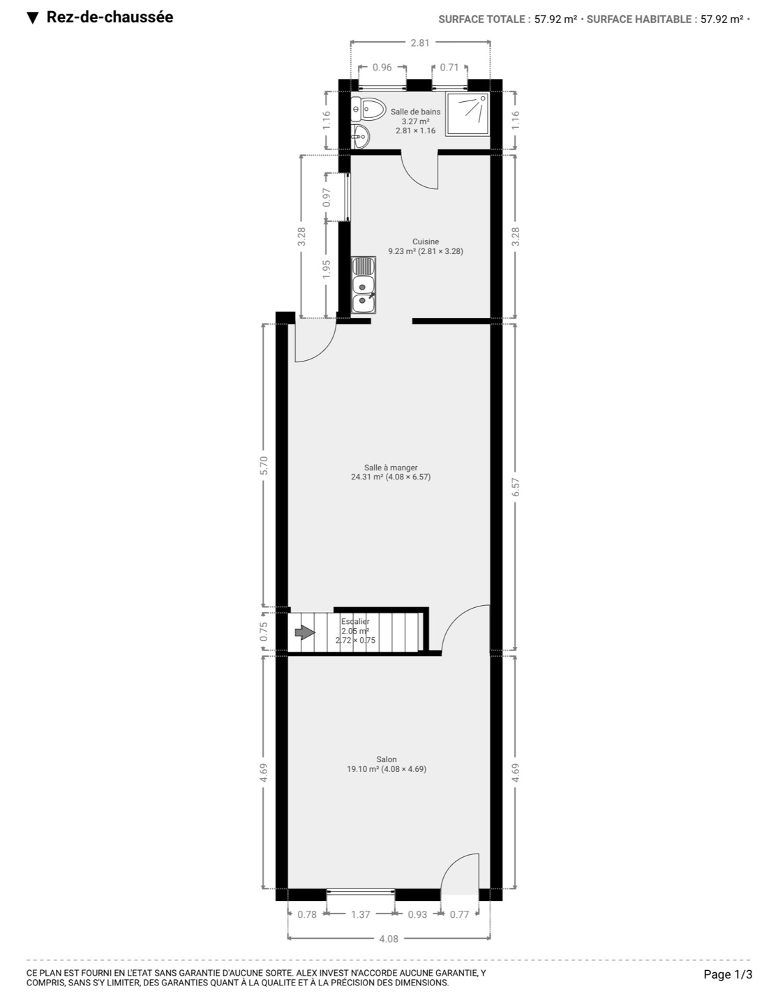
Elle se compose, au rez-de-chaussée, d’un salon, d’une salle à manger, d’un espace cuisine et d’une salle de douche avec WC.
Au premier étage, vous trouverez deux chambres.
Le deuxième étage comprend une troisième chambre ainsi qu’un grenier aménageable, offrant des possibilités d’extension supplémentaires.
À l’extérieur, un JARDIN en hauteur permet de profiter d’un espace vert agréable. Une remise complète l’ensemble.
Faire offre à partir de 90.000 €, sous réserve de l’acceptation des propriétaires.
Photos
Aspects Financiers et légaux
Offre à partir de : 90 000 €
Revenu cadastral : 473 €
Etat du bien : à rafraîchir
Disponible : à l'acte
Description extérieure
Nombre de façades : 2
Surface du terrain : 412 m²
Terrasse
Jardin
Certificats et attestations
PEB spécifique : 570.00 kWh/m².an
PEB total : 83316 kWh/an
CO2 : 181 kg C02/m².an
Validité certificat : 10/2035
Numéro du certificat : 20251009012393
Facilités
Raccordements : égout électricité gaz eau
Double vitrage
Description intérieure
Cuisine : 9.00 m²
Chambre 1 : 19.00 m²
Chambre 2 : 14.00 m²
Chambre 3 : 19.00 m²
1 salle(s) de bains
Rue de la Tombelle 10 - 7110 La Louvière Houdeng-Aimeries
 
---------- Document informatif et non contractuel ----------
Le positionnement est donné à titre indicatif et n'est absolument pas garanti



Imprimer

Contacter l'agence