Logo ALEX INVEST IMMOBILIER SRL
ALEX INVEST IMMOBILIER SRL
+32 488 32 79 79
Chaussée Paul Houtart 232 - 7110 Houdeng-Goegnies
Recherche par référence :

Réf. : 7117309  *** PLUS DE VISITE POSSIBLE / SOUS-COMPROMIS *** Immeuble de rapport 13 logements – rendement élevé à 7110 La Louvière Houdeng-Aimeries
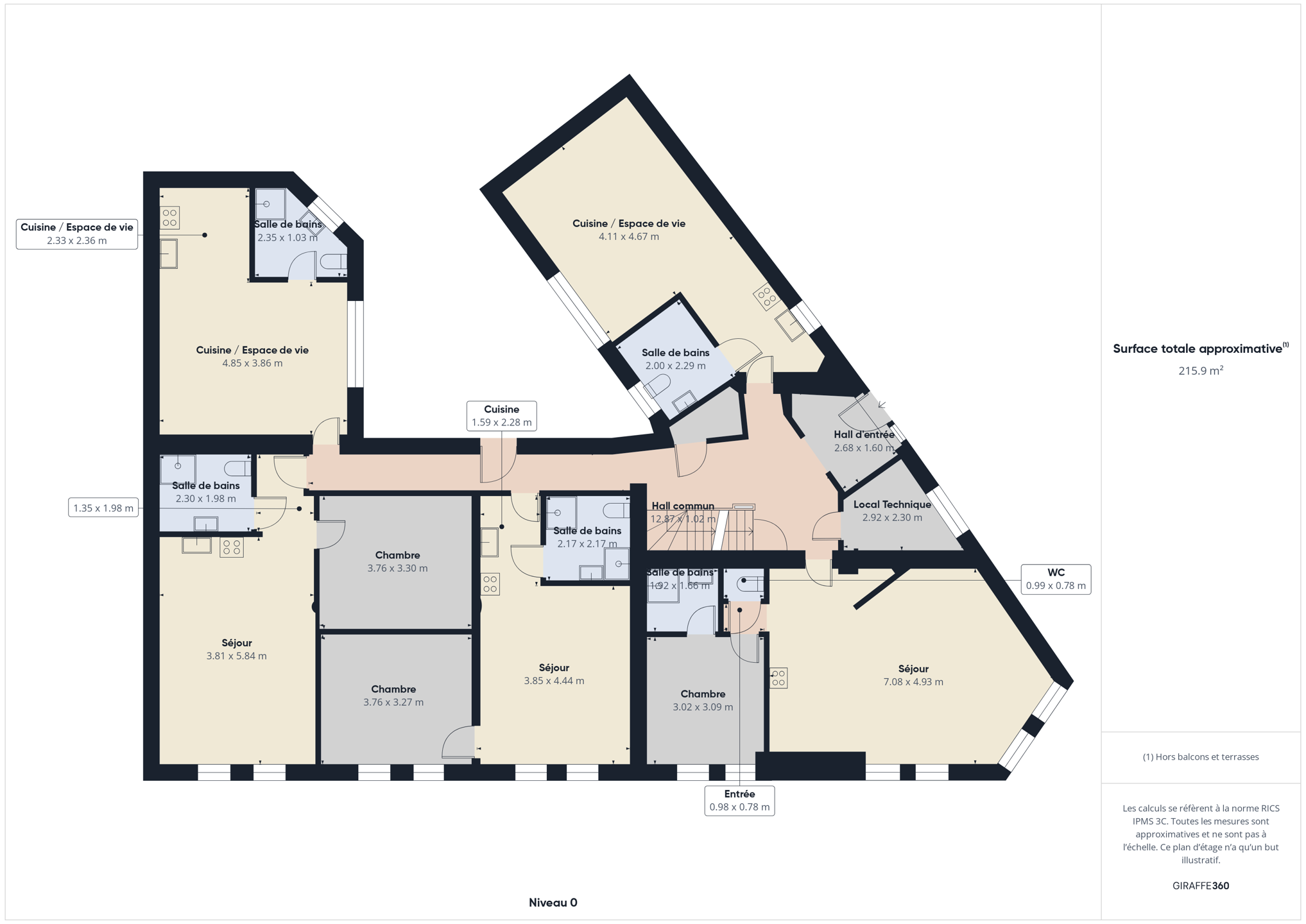
*** PLUS DE VISITE POSSIBLE / SOUS-COMPROMIS *** Un immeuble de rapport comprenant 13 logements, tous en bon état. Une belle opportunité pour tout investisseur souhaitant un bien entretenu et doté de compteurs séparés. Le rendement locatif peut atteindre environ 8.000 € par mois, ce qui en fait un placement particulièrement intéressant.
Il se compose comme suit :
=> au rez-de-chaussée, un hall d’entrée commun, une pièce technique, trois appartements une chambre ainsi que deux studios.
=> Au 1er étage se trouvent un studio, deux appartements duplex une chambre et trois appartements duplex deux chambres.
L’immeuble comprend également deux studios supplémentaires bénéficiant d’entrées séparées.
Une cour commune complète l’ensemble.
Nous vous invitons à découvrir la visite virtuelle et à consulter les plans pour mieux vous projeter. Et surtout, n’hésitez pas à nous contacter pour organiser une visite et peut-être découvrir votre future acquisition.
Faire offre à partir de 950.000 €, sous réserve de l’acceptation des propriétaires.
Vous pouvez télécharger l’intégralité des documents directement depuis notre site.
Certificats et attestations
PEB spécifique : 167.00 kWh/m².an
PEB total : 10535 kWh/an
CO2 : 31 kg C02/m².an
Validité certificat : 03/2034
Numéro du certificat : 20240307003063
Facilités
Raccordements : égout électricité gaz eau
Accès handicapé
Double vitrage
Description intérieure
Surface habitable : 633.00 m²
Chambre 1 : 12.00 m²
Chambre 2 : 10.00 m²
Chambre 3 : 13.00 m²
Chambre 4 : 16.00m²
13 salle(s) de bains
Ruelle du Patronage 1 - 7110 La Louvière Houdeng-Aimeries
 
---------- Document informatif et non contractuel ----------
Le positionnement est donné à titre indicatif et n'est absolument pas garanti



Imprimer

Contacter l'agence