Logo ALEX INVEST IMMOBILIER SRL
ALEX INVEST IMMOBILIER SRL
+32 488 32 79 79
Chaussée Paul Houtart 232 - 7110 Houdeng-Goegnies
Recherche par référence :

Réf. : 6852780  Maison / Possibilité Profession libérale (2 entrées) à 7190 Écaussinnes
Maison 2 ENTREES possibilité profession libérale.
Autrefois utilisée en partie comme cabinet paramédical, cette maison possède deux entrées indépendantes.
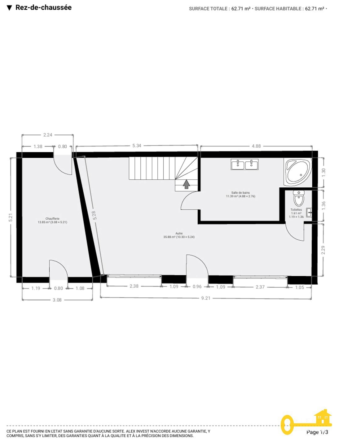
RDC: avec une entrée en façade, composé d'une grande pièce de +- 36m2, d'un wc avec lave-main et d'une salle de bain. Une buanderie. Un escalier donne accès au premier étage.
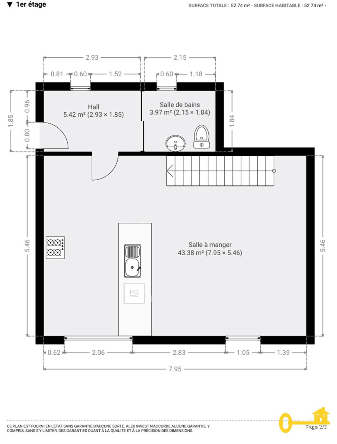
1er ETAGE: avec entrée indépendante sur le côté, composé d'un hall d'entrée, d'une salle d'eau avec wc et lavabo (possibilité d'y placer une douche), d'un grand séjour de +- 43m2 avec coin cuisine (cuisine équipée) et îlot central, d'un escalier donnant sur le deuxième étage.
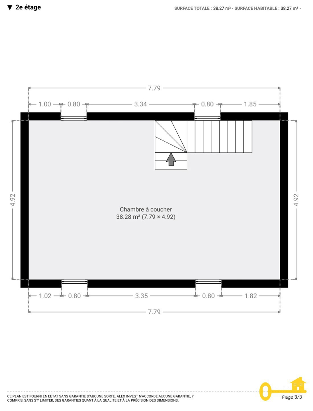
2ème ETAGE: grande chambre de +- 38m2.
Possibilité d'acquérir un GARAGE en supplément, moyennant négociation..
Chauffage central au gaz, châssis en bois double vitrage, compteur bi-horaire.
Faire offre à partir de 169.000€, sous réserve d'acceptation par la propriétaire. Ce bien se situe proche de toutes les commodités (gare, commerces, écoles)!
Photos
Aspects Financiers et légaux
Offre à partir de : 169 000 €
Revenu cadastral : 414 €
Etat du bien : excellent état
Disponible : à l'acte
Description extérieure
Nombre de façades : 3
Surface du terrain : 85 m²
Certificats et attestations
PEB spécifique : 345.00 kWh/m².an
PEB total : 58390 kWh/an
CO2 : 63 kg C02/m².an
Validité certificat : 05/2035
Numéro du certificat : 20250515013095
Certificat électrique : oui, non conforme
Facilités
Raccordements : égout électricité gaz eau
Double vitrage
Description intérieure
Surface habitable : 169.00 m²
Chambre 1 : 38.00 m²
1 salle(s) de bains
Buanderie
Rue de la Marlière 24 - 7190 Écaussinnes
 
---------- Document informatif et non contractuel ----------
Le positionnement est donné à titre indicatif et n'est absolument pas garanti



Imprimer

Contacter l'agence