Logo ALEX INVEST IMMOBILIER SRL
ALEX INVEST IMMOBILIER SRL
+32 488 32 79 79
Chaussée Paul Houtart 232 - 7110 Houdeng-Goegnies
Recherche par référence :

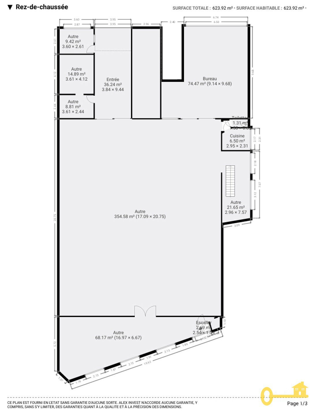
Réf. : 6804573  Vaste espace commercial/entrepôt avec bureaux à 7100 La Louvière
Vaste espace commercial avec bureaux lumineux, parfaitement situé à proximité d’un parc verdoyant, offrant un cadre agréable pour votre activité.
- Superficie généreuse (+- 600m²) idéale pour commerce, showroom, espace de stockage, bureaux ...
- Emplacement stratégique avec une forte visibilité à proximité d'un axe fréquenté
- Accès facile (transports en commun, voitures, stationnement à proximité)
- Environnement calme et verdoyant, propice à une expérience client agréable
- Locaux aux volumes généreux et adaptables selon vos besoins
Ne manquez pas cette opportunité unique de développer votre activité dans un cadre privilégié.
Offre à partir de 289.000€, sous réserve d'acceptation par les propriétaires.
Photos
Aspects Financiers et légaux
Offre à partir de : 289 000 €
Revenu cadastral : 2707 €
Etat du bien : bon état
Disponible : en fonct. du propriétaire
Date de disponibilité : 31/12/2025
Description extérieure
Nombre de façades : 3
Documents associés au bien
Facilités
Raccordements : égout électricité gaz eau
Accès handicapé
Description intérieure
Surface habitable : 600.00 m²
Place Mattéotti 29A - 7100 La Louvière
 
---------- Document informatif et non contractuel ----------
Le positionnement est donné à titre indicatif et n'est absolument pas garanti



Imprimer

Contacter l'agence