Logo ALEX INVEST IMMOBILIER SRL
ALEX INVEST IMMOBILIER SRL
+32 488 32 79 79
Chaussée Paul Houtart 232 - 7110 Houdeng-Goegnies
Recherche par référence :

Réf. : 6772848  Immeuble de rapport comprenant 2 Appartements + un HANGAR à 7100 La Louvière
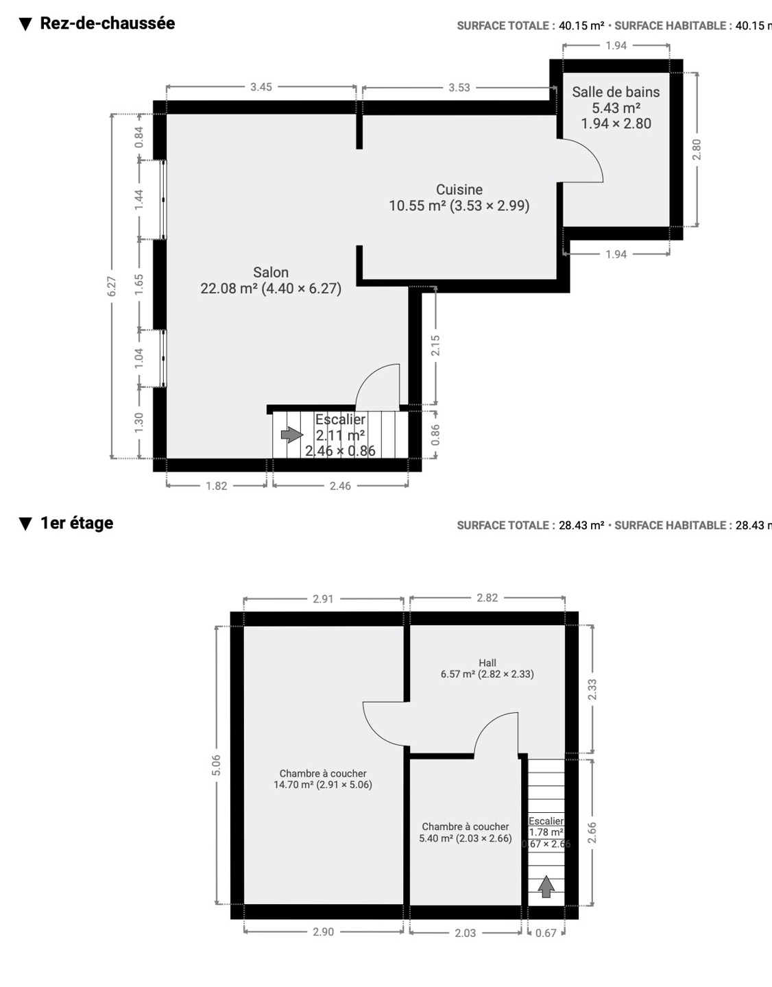
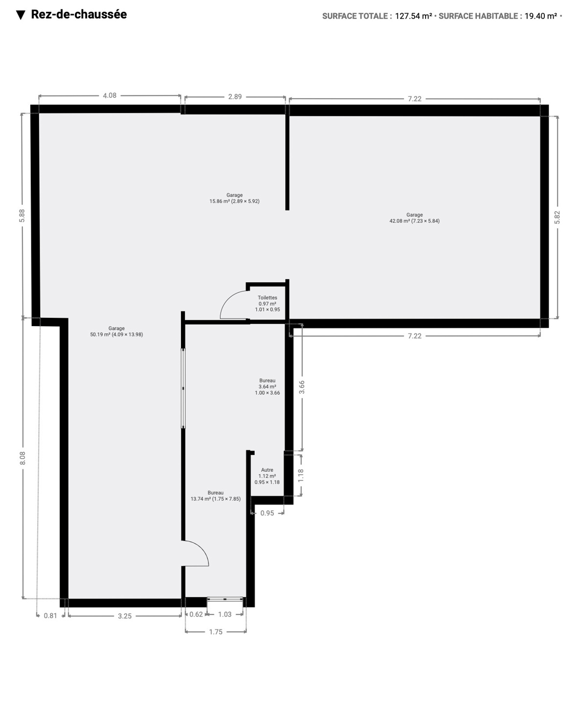
Immeuble de rapport de +/- 276m² comprenant 2 Appartements et un Hangar/Garage situé en plein centre de La Louvière. Celui-ci est réparti sur deux niveaux et propose une opportunité idéale pour un investissement locatif.
REZ : Un espace polyvalent comprenant un hangar spacieux, parfait pour des activités commerciales ou artisanales. Celui-ci est agrémenté d’un bureau, idéal pour la gestion administrative sur place. Cet espace permet une grande flexibilité pour divers types d’activités professionnelles.
1er ETAGE : Deux appartements distincts qui se composent comme suit : 1er Appartement (Duplex 0101) de +/- 91m²: Un séjour, une Cuisine ouverte, une salle de Bain avec WC, 1er étage : une Chambre de +/- 15m², un Bureau et un espace rangement. 2ème Appartement de +/- 70m² (0102) : un Hall d'entrée, un Séjour, une Cuisine ouverte avec espace dînatoire, une salle de Bain avec WC, une buanderie, deux Chambres (+/- 13 et 10m²) et une petite TERRASSE. ELECTRICITE CONFORME !
Les deux appartements peuvent être loués individuellement, offrant ainsi une source de revenus locatifs stables, tandis que le hangar avec bureau au rez-de-chaussée permet une exploitation commerciale ou professionnelle.
L'ensemble de l'immeuble bénéficie d'un bon emplacement, offrant à la fois un espace de vie et un espace professionnel dans un cadre pratique. Ce bien est à faire offre à partir de 249.000€ sous réserve de l'acceptation des propriétaires. ! PEB 0101 : E, 384Wh/m2.an, 34935KWh/an, Validité 20/09/2034 N° 20240920003578, 70Kg CO2/m2.an. PEB 0102 : E, 371kWh/m2.an, 26572KWh/an, Validité 19/09/2034 N° 20240919014009, 68Kg CO2/m2.an.
Photos
Aspects Financiers et légaux
Offre à partir de : 249 000 €
Revenu cadastral : 954 €
Etat du bien : bon état
Disponible : en fonct. du locataire
Description extérieure
Nombre de façades : 3
Surface du terrain : 165 m²
Terrasse
Balcon
Certificats et attestations
PEB spécifique : 384.00 kWh/m².an
PEB total : 34935 kWh/an
CO2 : 70 kg C02/m².an
Validité certificat : 09/2034
Numéro du certificat : 20240920003578
Certificat électrique : oui, conforme
Facilités
Raccordements : égout électricité gaz eau
Parlophone
Double vitrage
Description intérieure
Surface habitable : 276.00 m²
Chambre 1 : 15.00 m²
Chambre 2 : 13.00 m²
Chambre 3 : 10.00 m²
Chambre 4 : 5.00m²
2 salle(s) de bains
Buanderie
Rue Abelville 46 - 7100 La Louvière
 
---------- Document informatif et non contractuel ----------
Le positionnement est donné à titre indicatif et n'est absolument pas garanti



Imprimer

Contacter l'agence