Logo ALEX INVEST IMMOBILIER SRL
ALEX INVEST IMMOBILIER SRL
+32 488 32 79 79
Chaussée Paul Houtart 232 - 7110 Houdeng-Goegnies
Recherche par référence :

Réf. : 6758534  *** VENDU *** Immeuble de rapport comprenant 2 Appartements à 7110 La Louvière Houdeng-Goegnies

*** VENDU *** Immeuble de rapport de +/- 93 m² habitables comprenant un petit appartement et un appartement Duplex. L'immeuble se compose comme suit : hall d'entrée commun, appartement au rez-de-chaussée de +/- 33 m² : Séjour ouvert sur la cuisine non équipée, une chambre de +/- 9 m², une salle de douche, une cave avec espace buanderie et WC séparé.
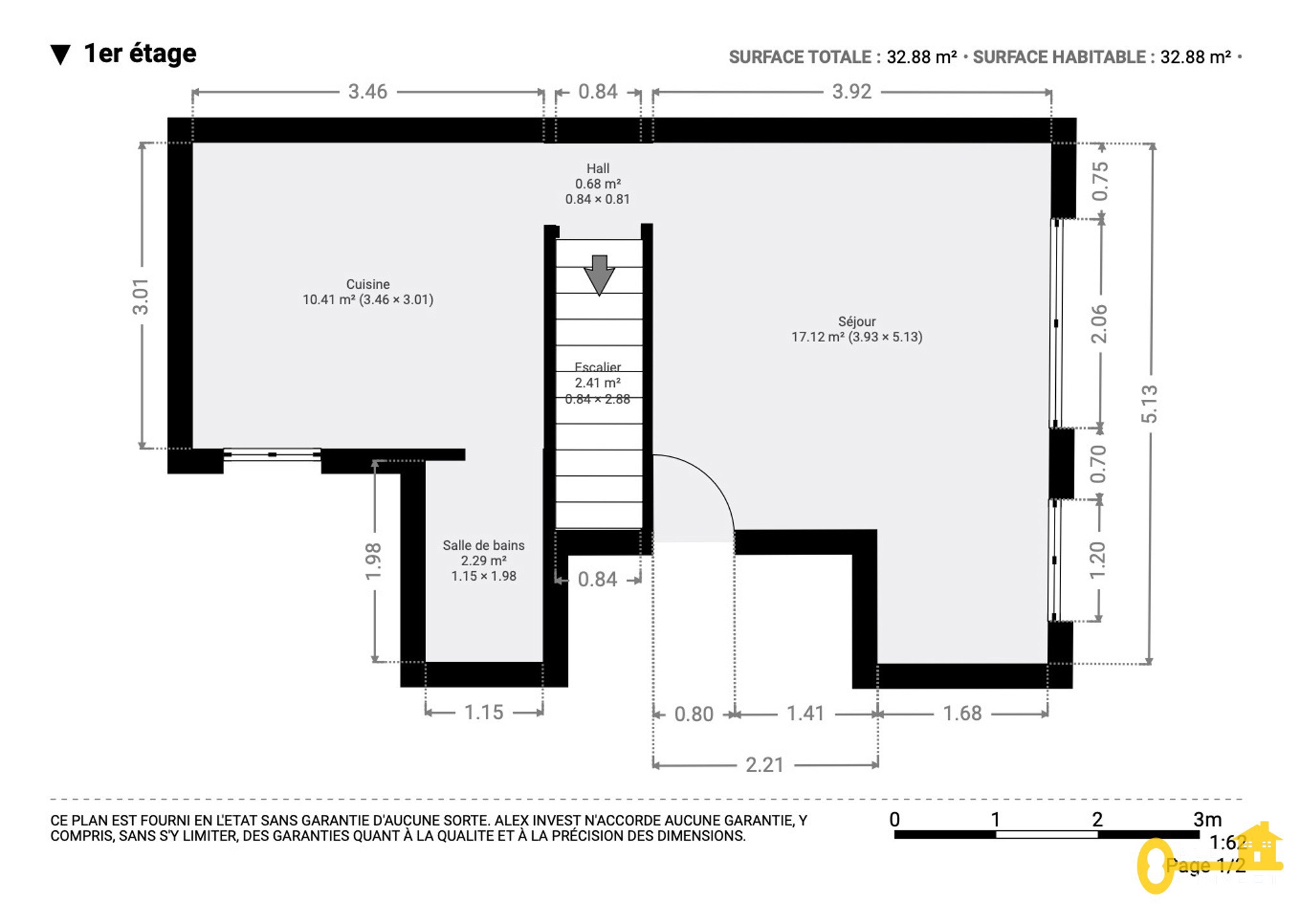
1er étage : appartement duplex de +/- 61 m² composé comme suit : un séjour de +/- 17 m², une cuisine semi-équipée, salle de douche avec WC.
2ème étage : 1 chambre de +/- 19 m² et un espace grenier pour rangement. Châssis PVC double vitrage, chauffage convecteur électrique. Les compteurs électriques sont séparés et un compteur commun pour l'eau. Revenus locatifs actuels de 765€/mois, revenus potentiels de +/- 1.000€/mois. Faire offre à partir de 89.000€ sous réserve de l'acceptation des propriétaires. Ne tardez pas à planifier une visite pour ce bien d'investissement qui ne restera pas longtemps sur le marché ! PEB rez-de-chaussée (9) : G, 531 Wh/m².an, 22575 kWh/an, validité jusqu'au 13/03/2035 N° 20250313025783, 137 kg CO2/m².an. PEB 1er étage (9/0101) : G, 666 kWh/m².an, 42219 kWh/an, validité jusqu'au 13/03/2035 N° 20250313025620, 172 kg CO2/m².an.

Photos
Aspects Financiers et légaux
Désolé, ce bien n'est plus disponible
Description extérieure
Nombre de façades : 2
Surface du terrain : 49 m²
Certificats et attestations
PEB spécifique : 531.00 kWh/m².an
PEB total : 22575 kWh/an
CO2 : 137 kg C02/m².an
Validité certificat : 03/2035
Numéro du certificat : 20250313025783
Certificat électrique : oui, non conforme
Facilités
Raccordements : égout électricité eau
Double vitrage
Description intérieure
Surface habitable : 93.00 m²
Chambre 1 : 19.00 m²
Chambre 2 : 9.00 m²
2 salle(s) de bains
Cave
Grenier
Rue Léon Duray 9 - 7110 La Louvière Houdeng-Goegnies
 
---------- Document informatif et non contractuel ----------
Le positionnement est donné à titre indicatif et n'est absolument pas garanti



Imprimer

Contacter l'agence