Logo ALEX INVEST IMMOBILIER SRL
ALEX INVEST IMMOBILIER SRL
+32 488 32 79 79
Chaussée Paul Houtart 232 - 7110 Houdeng-Goegnies
Recherche par référence :

Réf. : 6647059  **** PLUS DE VISITE POSSIBLE *** Maison 2 Chambres à RENOVER + COUR à 7070 Le Roeulx Villesur-Haine
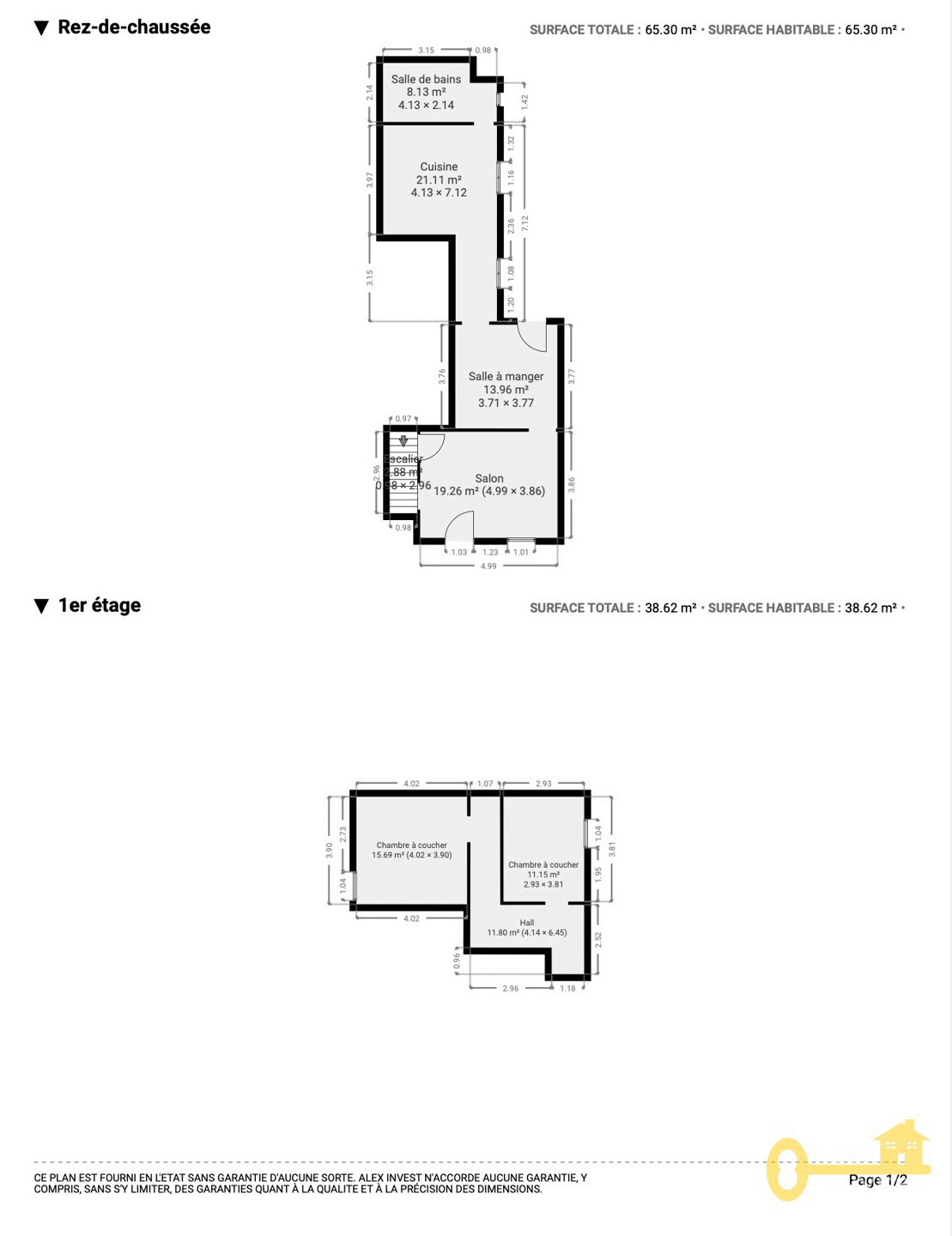
**** PLUS DE VISITE POSSIBLE *** Maison à rénover de +/- 149m² habitables située à proximité de toutes les facilités. Elle se compose comme suit : REZ : Salon de +/- 19m², Salle à Manger de +/- 14m², une cuisine non aménagée de +/- 21m², Salle de Bains. 1er ETAGE : 2 chambres (+/- 11 et 16m²). CAVE spacieuse. Le bien dispose également d'une petite COUR. Faire offre à partir de 69.000€ sous réserve de l'acceptation des propriétaires. À visiter sans tarder !
Photos
Aspects Financiers et légaux
Offre à partir de : 69 000 €
Revenu cadastral : 282 €
Etat du bien : à rénover
Disponible : à l'acte
Description extérieure
Nombre de façades : 2
Surface du terrain : 111 m²
Terrasse
Certificats et attestations
PEB spécifique : 381.00 kWh/m².an
PEB total : 56610 kWh/an
CO2 : 31 kg C02/m².an
Validité certificat : 02/2032
Numéro du certificat : 20220211009434
Certificat électrique : non
Facilités
Raccordements : électricité gaz eau
Description intérieure
Surface habitable : 149.00 m²
Cuisine : 21.00 m²
Chambre 1 : 11.00 m²
Chambre 2 : 16.00 m²
1 salle(s) de bains
Cave
Rue des Fabriques 5 - 7070 Le Roeulx Villesur-Haine
 
---------- Document informatif et non contractuel ----------
Le positionnement est donné à titre indicatif et n'est absolument pas garanti



Imprimer

Contacter l'agence