Logo ALEX INVEST IMMOBILIER SRL
ALEX INVEST IMMOBILIER SRL
+32 488 32 79 79
Chaussée Paul Houtart 232 - 7110 Houdeng-Goegnies
Recherche par référence :

Réf. : 6315428  ***PLUS DE VISITE POSSIBLE*** IMMEUBLE DE +/- 400m2 à 7100 La Louvière
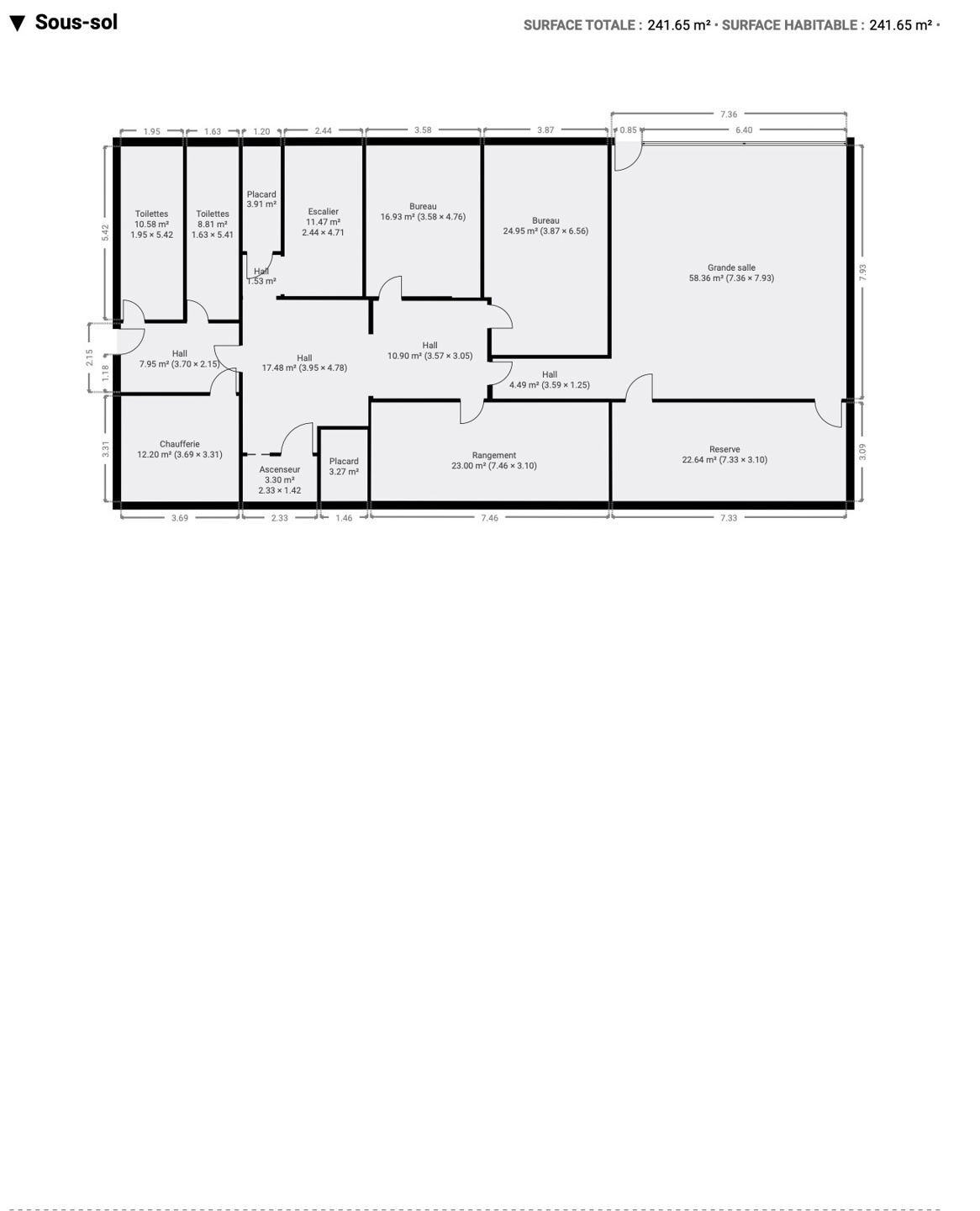
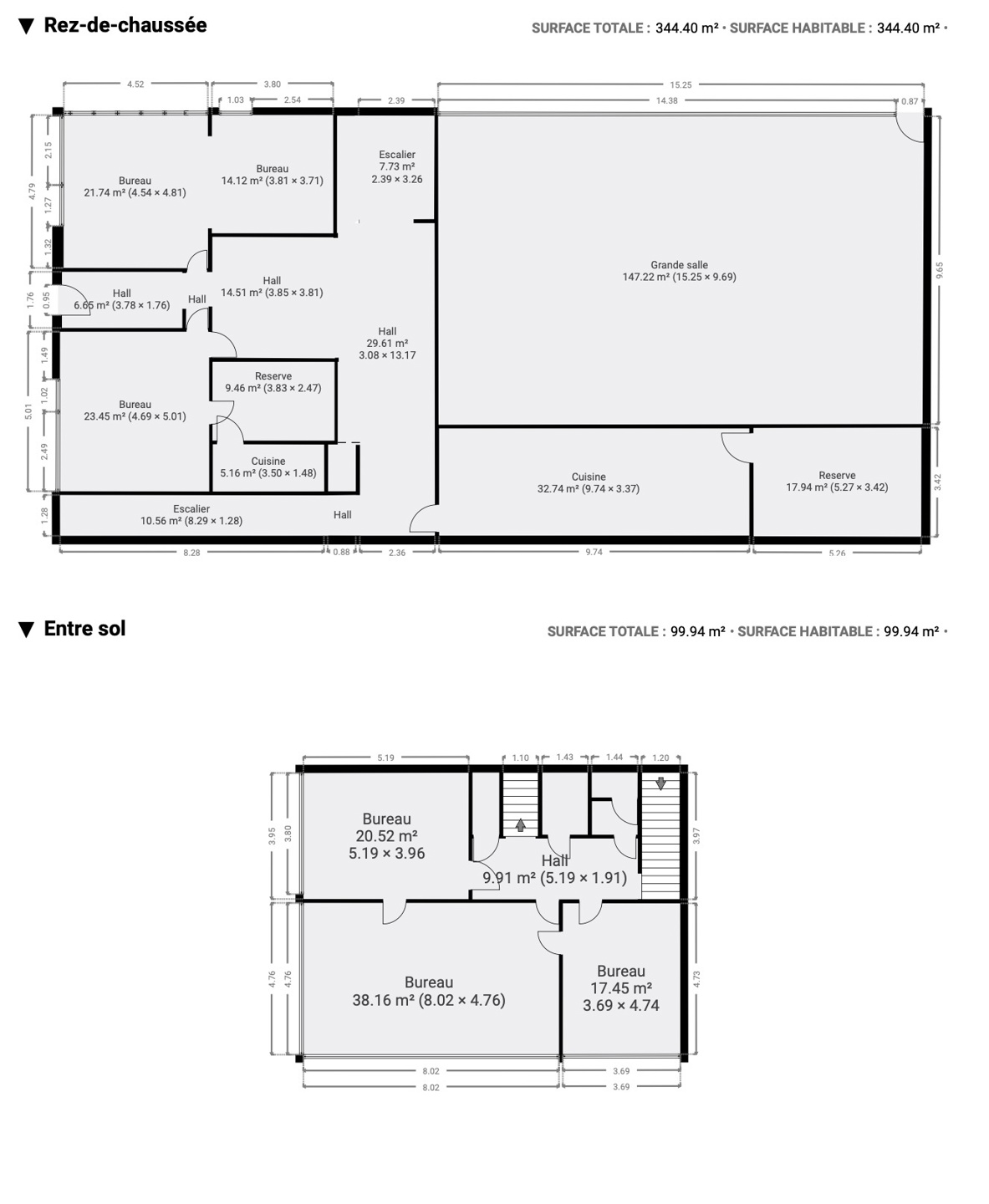
***PLUS DE VISITE POSSIBLE*** Bâtiment polyvalent de +/- 400m2 avec ascenseur au Centre de La Louvière. Actuellement occupé en bureaux, celui-ci se compose comme suit : REZ : Hall d'entrée, 3 Bureaux allant de 9 à 13m² dont un faisant office d'accueil, une grande Salle de Réunion de +/- 56m², une Cuisine semi-équipée commune avec un espace dînatoire, une pièce pouvant servir de Réserve. 1er ETAGE : Salle d'attente, 3 Bureaux allant de 10 à 18m², un espace rangement, WC Homme et Femme séparés. ; ENTRE-SOL : 8 Bureaux allant de 16 à 22m². 2ème ETAGE : 4 espaces Bureaux de +/- 15 à 17 m². Enorme potentiel ! Faire offre à partir de 295.000€ sous réserve de l'acceptation des propriétaires. A visiter sans tarder.
Photos
Aspects Financiers et légaux
Offre à partir de : 295 000 €
Revenu cadastral : 8986 €
Etat du bien : bon état
Disponible : en fonct. du propriétaire
Date de disponibilité : 30/06/2026
Description extérieure
Nombre de façades : 3
Facilités
Raccordements : égout électricité gaz eau
Accès handicapé
Description intérieure
Surface habitable : 400.00 m²
Cave
Rue du Temple 7 - 7100 La Louvière
 
---------- Document informatif et non contractuel ----------
Le positionnement est donné à titre indicatif et n'est absolument pas garanti



Imprimer

Contacter l'agence