Logo ALEX INVEST IMMOBILIER SRL
ALEX INVEST IMMOBILIER SRL
+32 488 32 79 79
Chaussée Paul Houtart 232 - 7110 Houdeng-Goegnies
Recherche par référence :

Réf. : 7190360  Immeuble mixte au fort potentiel à 7100 La Louvière
Cet immeuble mixte, accueillant autrefois une boulangerie, propose une superficie d'exploitation importante avec deux entrées séparées. Il est situé proche des commodités (gares, écoles, commerces, ...).
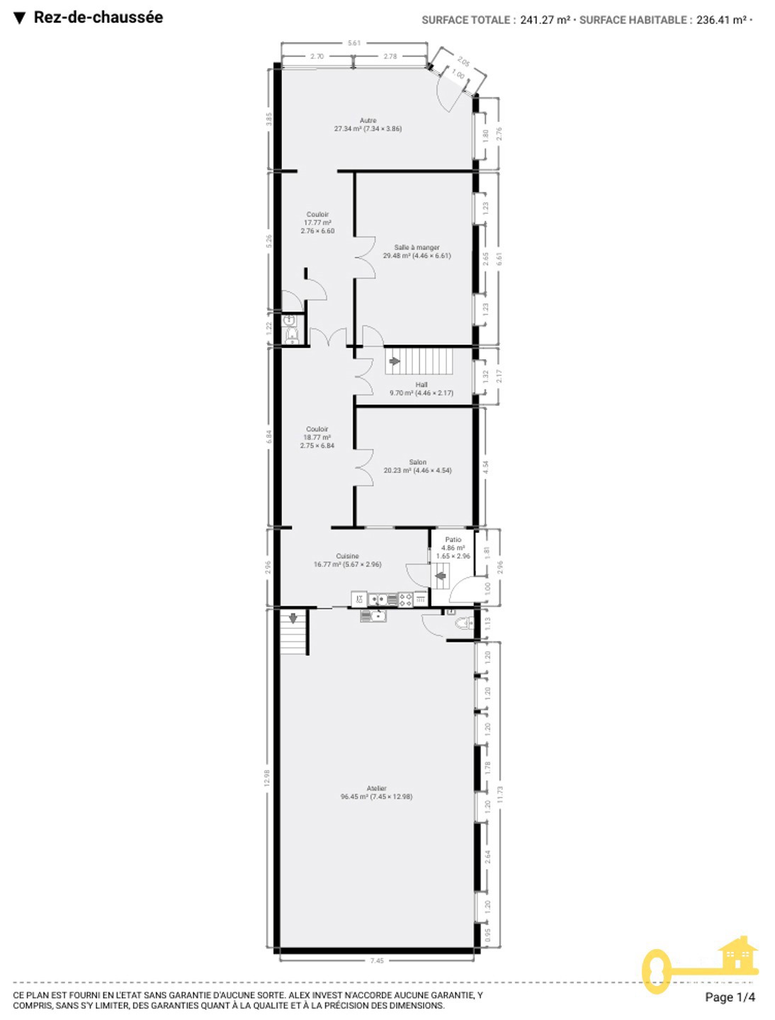
RDC de +- 240 m² composé d'un MAGASIN (+- 30 m²) avec comptoir réfrigéré en marbre, frigo, armoires et étagères, ATELIER (+- 100 m²) équipé de diverses machines de boulanger et four à pain, 2 WC, 1 cuisine équipée, un salon, une salle à manger, un large couloir (+- 36 m²) contenant un frigo 3 portes et un frigo choc de 4 portes.
1e ETAGE: grand hall de nuit avec placards, 4 très GRANDES CHAMBRES, 1 salle de bain avec wc, 1 grande TERRASSE (+- 30 m²) avec tente solaire.
2ème ETAGE: grand grenier aménageable de +- 104 m² avec accès par un escalier fixe.
SOUS-SOL de +- 128 m² composé de GRANDES CAVES, 1 chambre froide, 1 chaufferie/buanderie et 1 citerne d'eau de pluie avec groupe hydrophore.
Châssis en bois double vitrage, alarme avec vidéo surveillance, volets, coffre-fort, porte blindée entre le RDC et l'étage, chaudière au gaz, chauffage central, détecteurs incendie, 18 PANNEAUX PHOTOVOLTAIQUES.
Faire offre à partir de 195.000€, sous réserve d'acceptation par les propriétaires.
Photos
Aspects Financiers et légaux
Offre à partir de : 195 000 €
Revenu cadastral : 2169 €
Etat du bien : bon état
Disponible : à l'acte
Description extérieure
Nombre de façades : 2
Surface du terrain : 360 m²
Terrasse
Certificats et attestations
PEB spécifique : 403.00 kWh/m².an
PEB total : 123267 kWh/an
CO2 : 72 kg C02/m².an
Validité certificat : 10/2034
Numéro du certificat : 20241029021117
Certificat électrique : oui, non conforme
Facilités
Raccordements : égout électricité gaz eau
Double vitrage
Description intérieure
Surface habitable : 306.00 m²
Chambre 1 : 21.00 m²
Chambre 2 : 19.00 m²
Chambre 3 : 12.00 m²
Chambre 4 : 20.00m²
1 salle(s) de bains
Rue de Bouvy 40 - 7100 La Louvière
 
---------- Document informatif et non contractuel ----------
Le positionnement est donné à titre indicatif et n'est absolument pas garanti



Imprimer

Contacter l'agence